世田谷三宿マンション 2階
新規登録日:2026年04月28日
最終更新日:2026年04月28日
-
- 価格
- 6,999万円
-
- 所在地/交通
-
東京都世田谷区三宿2-27-14
東急田園都市線「三軒茶屋」駅より徒歩13分
-
- 間取り/専有面積
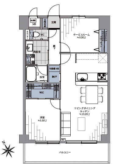
- 2SLDK+WIC/68.32㎡
物件情報
- 所在地
-
東京都世田谷区三宿2-27-14
地図・周辺情報
- アクセス
-
東急田園都市線「三軒茶屋」駅より徒歩13分
東急田園都市線「池尻大橋」駅より徒歩14分
- 間取り
- 2SLDK+WIC
- 専有面積
- 68.32㎡
- バルコニー面積
- 4.33㎡
- 向き
- 南東
- 築年月
- 1975年03月
- 所在階数
- 2階 地上5階
- 建物構造
- 鉄筋コンクリート造
- 総戸数
- 27戸
- 施工会社
- 株式会社竹中工務店
- 管理会社
- 株式会社大京アステージ
- 管理費
- 16,700 円/月
- 管理人状況
- 日勤
- 管理形態
- 管理会社に全部委託
- 修繕積立金
- 16,700 円/月
- 現況
- 居住中
- 引渡時期
- 相談
- 取引態様
- 媒介
- 駐車場
- 有 20,000円
- 土地権利
- 所有権
- ペットの飼育
- ペット不可
- 補足事項
- ・駐輪場:有(子供:500円/年、大人:1,000円/年、電動+500円/年)
・バイク置場:有(2,000円/月)
・トランクルーム:有(3,000円/月)
・室内画像の家具や調度品は販売価格に含まれません
周辺地図
動画で解説
ローンシミュレーション
※金利は元利均等方式で計算しており、返済年数は5〜35年まで変更できます。
※ボーナスは年2回で計算しており、毎月の支払金額とは別で1回に増加する金額を300万円まで入力できます。
-
- 返済期間
-
年
-
- 金利
-
%
-
- ボーナス時の加算金額
-
万円
-
- 頭金
-
万円
-
- 借入金額
-
万円
-
- 毎月の返済金額
-
円/月
この物件を見た人は
こんな物件も見ています
- 見学予約
- お問い合わせ
同じ地域の物件
同じ沿線の物件
マンション名検索
- 掲載物件数
- 4149件
サービス・運営メディア
不動産の売却・購入を
ご検討中の方へ
年中無休
受付時間 9:30〜18:30
グランドネクスト株式会社国土交通大臣(1)第9883号
-
新宿オフィス
東京都新宿区新宿1丁目3-12
壱丁目参番館 3階 -
横浜オフィス
神奈川県横浜市中区桜木町2丁目2
港陽ビル 5階 -
大宮オフィス
埼玉県さいたま市大宮区宮町二丁目93-2
BIZcomfort大宮東口 5階 -
津田沼オフィス
千葉県船橋市前原西2丁目14-2
津田沼駅前安田ビル別館 2階 -
秋葉原オフィス
東京都千代田区神田佐久間河岸55
朝風染常ビル 2階
グランドネクスト販売
株式会社東京都知事(1)第105105号
-
池袋オフィス
東京都豊島区池袋2丁目13番4号
天翔池袋西口ビル 5階
お問い合わせ先



















・「三軒茶屋」駅徒歩13分。下北沢や中目黒が生活圏。商業施設が豊富で生活利便性の高い環境です。
・セキュリティ面に配慮し、オートロックを完備しています。管理人日勤につき管理状況良好です。
・お部屋は2階部分の2SLDK。家事効率を高める2wayの洗面室。WIC付きで収納スペース豊富です。
<販売価格について>
2026年4月28日での掲載開始した時点の価格は6,999万円です。