清新北ハイツ 4-7号棟1207号室
新規登録日:2026年04月27日
最終更新日:2026年04月27日
-
- 価格
- 7,980万円
-
- 所在地/交通
-
東京都江戸川区清新町1-4-7
東京メトロ東西線「西葛西」駅より徒歩12分
-
- 間取り/専有面積
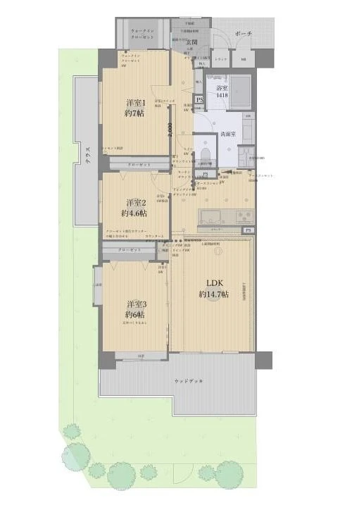
- 4LDK+マルチWIC+WIC+SIC/91.48㎡
物件情報
- 所在地
-
東京都江戸川区清新町1-4-7
地図・周辺情報
- アクセス
-
東京メトロ東西線「西葛西」駅より徒歩12分
- 間取り
- 4LDK+マルチWIC+WIC+SIC
- 専有面積
- 91.48㎡
- バルコニー面積
- 24.84㎡
- 向き
- 東
- 築年月
- 1984年08月
- 所在階数
- 12階 地上23階
- 建物構造
- 鉄骨鉄筋コンクリート造
- 総戸数
- 179戸
- 施工会社
- 不明
- 管理会社
- 日本ハウズイング株式会社
- 管理費
- 12,600 円/月
- 管理人状況
- 日勤
- 管理形態
- 管理会社に全部委託
- 修繕積立金
- 14,525 円/月
- 現況
- 空室
- 引渡時期
- 相談
- 取引態様
- 媒介
- 駐車場
- 空無 16,000円~20,000円
- 土地権利
- 所有権
- ペットの飼育
- ペット不可
- 補足事項
- ・不在組合員協力金:2,000円
・トランクルーム:空有(月額6,000円、敷金:4ヶ月分)
・駐車場敷金:3ヶ月分
・長期修繕計画あり
・大規模修繕工事実施中(~2027年3月)
・全棟総戸数:823戸
・事務所利用:相談
周辺地図
動画で解説
ローンシミュレーション
※金利は元利均等方式で計算しており、返済年数は5〜35年まで変更できます。
※ボーナスは年2回で計算しており、毎月の支払金額とは別で1回に増加する金額を300万円まで入力できます。
-
- 返済期間
-
年
-
- 金利
-
%
-
- ボーナス時の加算金額
-
万円
-
- 頭金
-
万円
-
- 借入金額
-
万円
-
- 毎月の返済金額
-
円/月
この物件を見た人は
こんな物件も見ています
- 見学予約
- お問い合わせ
同じ地域の物件
同じ沿線の物件
マンション名検索
- 掲載物件数
- 4116件
サービス・運営メディア
不動産の売却・購入を
ご検討中の方へ
年中無休
受付時間 9:30〜18:30
グランドネクスト株式会社国土交通大臣(1)第9883号
-
新宿オフィス
東京都新宿区新宿1丁目3-12
壱丁目参番館 3階 -
横浜オフィス
神奈川県横浜市中区桜木町2丁目2
港陽ビル 5階 -
大宮オフィス
埼玉県さいたま市大宮区宮町二丁目93-2
BIZcomfort大宮東口 5階 -
津田沼オフィス
千葉県船橋市前原西2丁目14-2
津田沼駅前安田ビル別館 2階 -
秋葉原オフィス
東京都千代田区神田佐久間河岸55
朝風染常ビル 2階
グランドネクスト販売
株式会社東京都知事(1)第105105号
-
池袋オフィス
東京都豊島区池袋2丁目13番4号
天翔池袋西口ビル 5階
お問い合わせ先



















・東西線「西葛西」駅より徒歩12分の立地に建つ、複数棟からなるビッグコミュニティです。
・至近にはショッピングセンターやクリニックがあり、日々の生活に便利な施設が整っています。
・幼稚園や小学校、公園がお近くにございます。子育て中のご家庭にもおすすめの住環境です。
・眺望良好な12階部分、角住戸。専有面積91㎡の大型4LDK。WICやSICなど収納充実しております。
<主なリノベーション内容>(令和8年7月31日完成予定)
システムキッチン/ユニットバス/洗面台/トイレ/クロス張替/床張替/建具/給湯器/その他
<販売価格について>
2026年4月27日での掲載開始した時点の価格は7,980万円です。
【同マンション 5号棟1407号室 4LDK+SIC+パントリー】も販売中です。詳しくはこちらをクリック!