日吉台マンション 1階
-
- 価格
- 5,980万円
-
- 所在地/交通
-
神奈川県横浜市港北区日吉本町2-31-2
東急東横線「日吉」駅より徒歩11分
-
- 間取り/専有面積
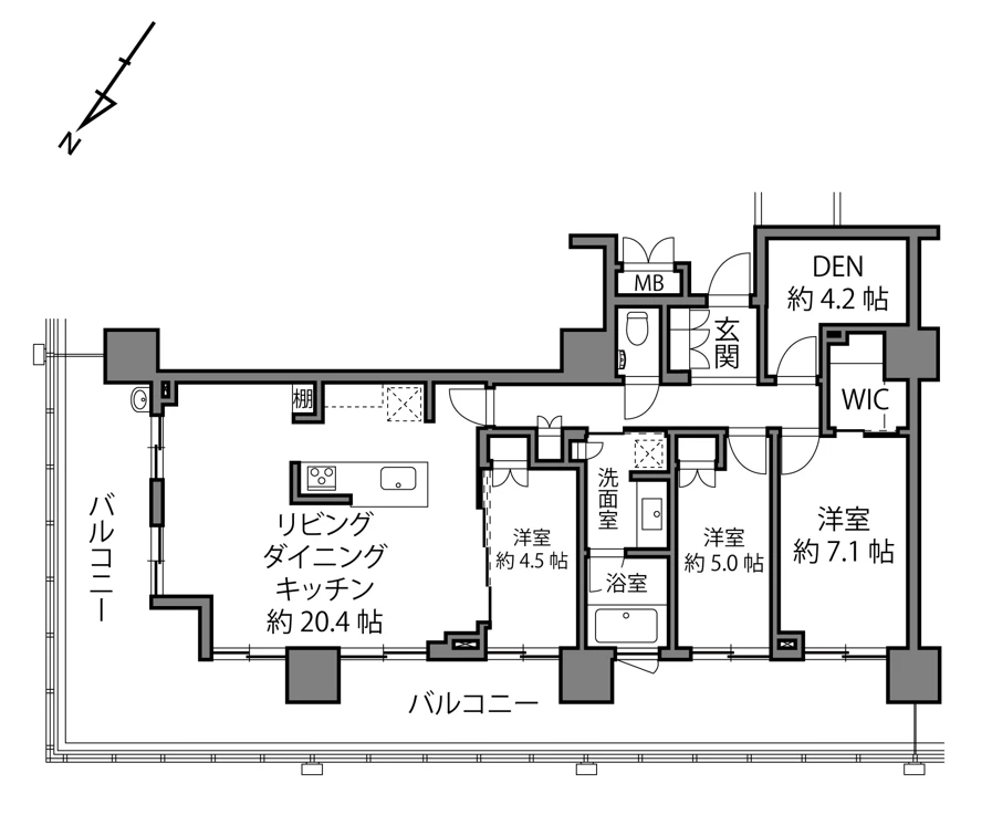
- 2LDK+WIC/101.91㎡
物件情報
- 所在地
-
神奈川県横浜市港北区日吉本町2-31-2
地図・周辺情報
- アクセス
-
東急東横線「日吉」駅より徒歩11分
東急目黒線「日吉」駅より徒歩11分
横浜市営地下鉄グリーンライン「日吉」駅より徒歩11分
- 間取り
- 2LDK+WIC
- 専有面積
- 101.91㎡
- バルコニー面積
- 13.63㎡
- 向き
- 南西
- 築年月
- 1970年10月
- 所在階数
- 1階 地上7階/地下2階
- 建物構造
- 鉄筋コンクリート造
- 総戸数
- 133戸
- 施工会社
- 鹿島建設株式会社
- 管理会社
- 株式会社東急コミュニテイー
- 管理費
- 24,110 円/月
- 管理人状況
- 巡回
- 管理形態
- 管理会社に一部委託
- 修繕積立金
- 19,270 円/月
- 現況
- 居住中
- 引渡時期
- 相談
- 取引態様
- 媒介
- 駐車場
- 要確認
- 土地権利
- 所有権
- ペットの飼育
- ペット可
- 補足事項
- ・駐輪場:有
・バイク置場:有
・給水管更新工事積立金:月額3,000円
・LDK面積にはインナーテラス部分を含みます
・2022年1月にフルリノベーション履歴有
周辺地図
動画で解説
ローンシミュレーション
※金利は元利均等方式で計算しており、返済年数は5〜35年まで変更できます。
※ボーナスは年2回で計算しており、毎月の支払金額とは別で1回に増加する金額を300万円まで入力できます。
-
- 返済期間
-
年
-
- 金利
-
%
-
- ボーナス時の加算金額
-
万円
-
- 頭金
-
万円
-
- 借入金額
-
万円
-
- 毎月の返済金額
-
円/月
この物件を見た人は
こんな物件も見ています
- 見学予約
- お問い合わせ
同じ地域の物件
同じ沿線の物件
マンション名検索
- 掲載物件数
- 4107件
同じ地域の物件
-
- マンション
コートハウス日吉本町 1202号室
5,999万円
横浜市営地下鉄グリーンライン「日吉本町」駅より徒歩13分
3LDK 74.04㎡ 1996年03月 2階 地上6階 南
-
- マンション
アルス日吉本町 216号室
1億1,200万円
東急東横線「日吉」駅より徒歩9分
3LDK+WIC 75.07㎡ 2002年08月 2階 地上4階 東
-
- マンション
コーポ日吉台 210号室
2,299万円
横浜市営地下鉄グリーンライン「日吉本町」駅より徒歩7分
2LDK 49.00㎡ 1970年04月 2階 地上6階 南
-
- マンション
- 新価格3月27日
パーク・ハイム日吉本町 206号室
5,890万円
横浜市営地下鉄グリーンライン「日吉本町」駅より徒歩8分
3LDK+WIC 71.43㎡ 1997年03月 2階 地上3階 北西
-
- マンション
カサベルダ 4階
1,980万円
横浜市営地下鉄グリーンライン「日吉本町」駅より徒歩8分
1DK 35.36㎡ 1972年01月 4階 地上6階 南東
サービス・運営メディア
不動産の売却・購入を
ご検討中の方へ
年中無休
受付時間 9:30〜18:30
グランドネクスト株式会社国土交通大臣(1)第9883号
-
新宿オフィス
東京都新宿区新宿1丁目3-12
壱丁目参番館 3階 -
横浜オフィス
神奈川県横浜市中区桜木町2丁目2
港陽ビル 5階 -
大宮オフィス
埼玉県さいたま市大宮区宮町二丁目93-2
BIZcomfort大宮東口 5階 -
津田沼オフィス
千葉県船橋市前原西2丁目14-2
津田沼駅前安田ビル別館 2階 -
秋葉原オフィス
東京都千代田区神田佐久間河岸55
朝風染常ビル 2階
グランドネクスト販売
株式会社東京都知事(1)第105105号
-
池袋オフィス
東京都豊島区池袋2丁目13番4号
天翔池袋西口ビル 5階
お問い合わせ先



















・1970年築、総戸数133戸。複数路線利用可能な「日吉」駅徒歩11分に建つ7階建てマンションです。
・大切なペットと一緒に暮らすことができます。これから飼育をお考えの方にもおすすめです。
・お部屋は1階部分の2LDK+WIC。収納豊富。南西向きバルコニーにつき日当たり眺望良好です。
<販売価格について>
2026年3月18日での掲載開始した時点の価格は5,980万円です。