港南台プリンスハイツ 5号館207号室
新規登録日:2026年03月10日
最終更新日:2026年03月10日
-
- 価格
- 2,490万円
-
- 所在地/交通
-
神奈川県横浜市栄区上郷町263-32
JR根岸線「港南台」駅より徒歩22分
-
- 間取り/専有面積
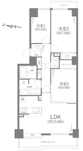
- 3LDK/79.91㎡
物件情報
- 所在地
-
神奈川県横浜市栄区上郷町263-32
地図・周辺情報
- アクセス
-
JR根岸線「港南台」駅より徒歩22分
JR根岸線「港南台」駅より徒歩22分
- 間取り
- 3LDK
- 専有面積
- 79.91㎡
- バルコニー面積
- 8.68㎡
- 向き
- 南西
- 築年月
- 1983年02月
- 所在階数
- 2階 地上4階
- 建物構造
- 鉄筋コンクリート造
- 総戸数
- 190戸
- 施工会社
- 前田建設工業株式会社
- 管理会社
- 新日本管財株式会社
- 管理費
- 8,250 円/月
- 管理人状況
- 日勤
- 管理形態
- 管理会社に全部委託
- 修繕積立金
- 13,984 円/月
- 現況
- 空室
- 引渡時期
- 即時
- 取引態様
- 媒介
- 駐車場
- 有 6,000円~9,000円
- 土地権利
- 所有権
- ペットの飼育
- ペット不可
- 補足事項
- ・エレベーター無
・長期修繕計画有
※駐車場等空要確認
・ホームステージング実施物件
※設置されているインテリア家具はディスプレイ用になります。
周辺地図
動画で解説
ローンシミュレーション
※金利は元利均等方式で計算しており、返済年数は5〜35年まで変更できます。
※ボーナスは年2回で計算しており、毎月の支払金額とは別で1回に増加する金額を300万円まで入力できます。
-
- 返済期間
-
年
-
- 金利
-
%
-
- ボーナス時の加算金額
-
万円
-
- 頭金
-
万円
-
- 借入金額
-
万円
-
- 毎月の返済金額
-
円/月
この物件を見た人は
こんな物件も見ています
- 見学予約
- お問い合わせ
同じ地域の物件
同じ沿線の物件
マンション名検索
- 掲載物件数
- 4155件
サービス・運営メディア
不動産の売却・購入を
ご検討中の方へ
年中無休
受付時間 9:30〜18:30
グランドネクスト株式会社国土交通大臣(1)第9883号
-
新宿オフィス
東京都新宿区新宿1丁目3-12
壱丁目参番館 3階 -
横浜オフィス
神奈川県横浜市中区桜木町2丁目2
港陽ビル 5階 -
大宮オフィス
埼玉県さいたま市大宮区宮町二丁目93-2
BIZcomfort大宮東口 5階 -
津田沼オフィス
千葉県船橋市前原西2丁目14-2
津田沼駅前安田ビル別館 2階 -
秋葉原オフィス
東京都千代田区神田佐久間河岸55
朝風染常ビル 2階
グランドネクスト販売
株式会社東京都知事(1)第105105号
-
池袋オフィス
東京都豊島区池袋2丁目13番4号
天翔池袋西口ビル 5階
お問い合わせ先



















・「港南台」駅より徒歩22分。複数棟からなる地上4階建てのビックコミュニティマンションです。
・周辺にはコンビニエンスストアなどもあり毎日のお買い物に大変便利な住環境です。
・小学校や中学校などの教育施設も徒歩圏内。子育て世代の方にもおすすめの住環境です。
・お部屋は2階部分の3LDK。各居室に収納有。すっきり快適なお部屋でお過ごしいただけます。
・バルコニーは2か所あり陽当たり通風良好です。リノベーションのお部屋で快適となっております。
<主なリノベーション内容>(令和8年3月上旬施工完了)
システムキッチン/ユニットバス/洗面台/トイレ/クロス張替/床張替/建具/その他
<販売価格について>
2026年3月10日での掲載開始した時点の価格は2,490万円です。
【同マンション4号棟405号室3LDK】も販売中です。詳しくはこちらをクリック!
【同マンション 6号館第1棟103号室 3LDK】も販売中です。詳しくはこちらをクリック!
・全体総戸数:501戸