市川パークハイツ A棟307号室
新規登録日:2026年02月27日
最終更新日:2026年04月08日
-
- 価格
- 3,480万円4月8日 値下げ
-
- 所在地/交通
-
千葉県市川市南大野2-3
JR武蔵野線「市川大野」駅より徒歩15分
-
- 間取り/専有面積
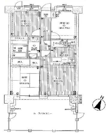
- 4LDK/120.10㎡
物件情報
- 所在地
-
千葉県市川市南大野2-3
地図・周辺情報
- アクセス
-
JR武蔵野線「市川大野」駅より徒歩15分
京成本線「京成八幡」駅よりバスで15分
JR総武線「市川」駅よりバスで25分
- 間取り
- 4LDK
- 専有面積
- 120.10㎡
- バルコニー面積
- 15.30㎡
- 向き
- 南東
- 築年月
- 1980年07月
- 所在階数
- 3階 地上11階
- 建物構造
- 鉄骨鉄筋コンクリート造
- 総戸数
- 152戸
- 施工会社
- 三堅不動産株式会社・川商不動産株式会社・三井建設株式会社
- 管理会社
- 新日本管財株式会社
- 管理費
- 8,940 円/月
- 管理人状況
- 日勤
- 管理形態
- 管理会社に全部委託
- 修繕積立金
- 17,330 円/月
- 現況
- 空室
- 引渡時期
- 即時
- 取引態様
- 媒介
- 駐車場
- 有 7,000円~8,000円
- 土地権利
- 所有権
- ペットの飼育
- ペット可
- 補足事項
- ・駐輪場:有(年額600円)
・バイク置場:有(月額1,000~1,500円)
周辺地図
動画で解説
ローンシミュレーション
※金利は元利均等方式で計算しており、返済年数は5〜35年まで変更できます。
※ボーナスは年2回で計算しており、毎月の支払金額とは別で1回に増加する金額を300万円まで入力できます。
-
- 返済期間
-
年
-
- 金利
-
%
-
- ボーナス時の加算金額
-
万円
-
- 頭金
-
万円
-
- 借入金額
-
万円
-
- 毎月の返済金額
-
円/月
この物件を見た人は
こんな物件も見ています
- 見学予約
- お問い合わせ
同じ地域の物件
同じ沿線の物件
マンション名検索
- 掲載物件数
- 4022件
サービス・運営メディア
不動産の売却・購入を
ご検討中の方へ
年中無休
受付時間 9:30〜18:30
グランドネクスト株式会社国土交通大臣(1)第9883号
-
新宿オフィス
東京都新宿区新宿1丁目3-12
壱丁目参番館 3階 -
横浜オフィス
神奈川県横浜市中区桜木町2丁目2
港陽ビル 5階 -
大宮オフィス
埼玉県さいたま市大宮区宮町二丁目93-2
BIZcomfort大宮東口 5階 -
津田沼オフィス
千葉県船橋市前原西2丁目14-2
津田沼駅前安田ビル別館 2階 -
秋葉原オフィス
東京都千代田区神田佐久間河岸55
朝風染常ビル 2階
グランドネクスト販売
株式会社東京都知事(1)第105105号
-
池袋オフィス
東京都豊島区池袋2丁目13番4号
天翔池袋西口ビル 5階
お問い合わせ先



















・複数棟からなるビッグコミュニティ。「市川大野」駅が最寄りの管理体制の良いマンションです。
・近隣にはスーパーやコンビニエンスストア、ドラッグストアがあり、お買い物に便利です。
・小学校や公園がお近くにございます。子育て中のご家庭にもおすすめの住環境です。
・大切なペットと一緒に暮らすことができます。これから飼育をお考えの方にもおすすめです。
・お部屋は3階部分の4LDK。各居室に収納有。食洗機、浴室乾燥機など室内設備が充実しています。
<主なリノベーション内容>(令和7年9月8日施工完了)
システムキッチン/ユニットバス/洗面台/トイレ/クロス張替/床張替/建具/その他
<販売価格について>
2026年2月27日での掲載開始した時点の価格は3,780万円です。
【同マンション B棟8階 3LDK+ファミリークローゼット】も販売中です。詳しくはこちらをクリック!