西荻窪第5コーポラス 301号室
新規登録日:2026年02月27日
最終更新日:2026年04月06日
-
- 価格
- 2,380万円4月6日 値下げ
-
- 所在地/交通
-
東京都杉並区西荻北4-12-13
JR総武中央線「西荻窪」駅より徒歩6分
-
- 間取り/専有面積
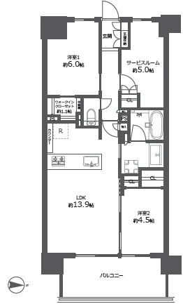
- 1LDK/36.54㎡
物件情報
- 所在地
-
東京都杉並区西荻北4-12-13
地図・周辺情報
- アクセス
-
JR総武中央線「西荻窪」駅より徒歩6分
- 間取り
- 1LDK
- 専有面積
- 36.54㎡
- バルコニー面積
- 2.74㎡
- 向き
- 南東
- 築年月
- 1969年09月
- 所在階数
- 3階 地上7階
- 建物構造
- 鉄骨造
- 総戸数
- 32戸
- 施工会社
- ニチモプレハブ株式会社
- 管理会社
- -
- 管理費
- 8,000 円/月
- 管理人状況
- -
- 管理形態
- 自主管理
- 修繕積立金
- 9,000 円/月
- 現況
- 空室
- 引渡時期
- 即時
- 取引態様
- 媒介
- 駐車場
- 要確認
- 土地権利
- 所有権
- ペットの飼育
- ペット不可
- 補足事項
- ・外部オーナー:月額2,000円
周辺地図
動画で解説
ローンシミュレーション
※金利は元利均等方式で計算しており、返済年数は5〜35年まで変更できます。
※ボーナスは年2回で計算しており、毎月の支払金額とは別で1回に増加する金額を300万円まで入力できます。
-
- 返済期間
-
年
-
- 金利
-
%
-
- ボーナス時の加算金額
-
万円
-
- 頭金
-
万円
-
- 借入金額
-
万円
-
- 毎月の返済金額
-
円/月
この物件を見た人は
こんな物件も見ています
- 見学予約
- お問い合わせ
同じ地域の物件
同じ沿線の物件
マンション名検索
- 掲載物件数
- 4351件
サービス・運営メディア
不動産の売却・購入を
ご検討中の方へ
年中無休
受付時間 9:30〜18:30
グランドネクスト株式会社国土交通大臣(2)第9883号
-
新宿オフィス
東京都新宿区新宿1丁目3-12
壱丁目参番館 3階 -
横浜オフィス
神奈川県横浜市中区桜木町2丁目2
港陽ビル 5階 -
大宮オフィス
埼玉県さいたま市大宮区宮町二丁目93-2
BIZcomfort大宮東口 5階 -
津田沼オフィス
千葉県船橋市前原西2丁目14-2
津田沼駅前安田ビル別館 2階 -
秋葉原オフィス
東京都千代田区神田佐久間河岸55
朝風染常ビル 2階
グランドネクスト販売
株式会社東京都知事(2)第105105号
-
池袋オフィス
東京都豊島区池袋2丁目13番4号
天翔池袋西口ビル 5階
お問い合わせ先



















・「西荻窪」駅より徒歩6分の好立地に建つ、総戸数32戸の7階建てマンションです。
・周辺にはスーパーやコンビニ、商店街等があり日々のお買い物にも便利な環境です。
・お部屋は3階部分の1LDK。南東向きの角住戸につき、日当たりと通風が良好となっております。
<販売価格について>
2026年2月27日での掲載開始した時点の価格は2,480万円です。