プレシス横濱新杉田 7階
新規登録日:2026年02月26日
最終更新日:2026年02月26日
-
- 価格
- 4,180万円
-
- 所在地/交通
-
神奈川県横浜市磯子区中原1-3-39
JR京浜東北線「新杉田」駅より徒歩6分
-
- 間取り/専有面積
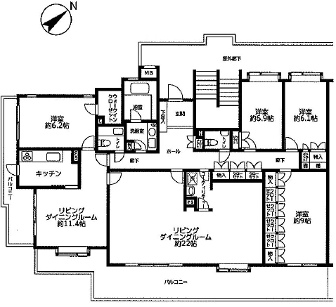
- 2LDK/60.27㎡
物件情報
- 所在地
-
神奈川県横浜市磯子区中原1-3-39
地図・周辺情報
- アクセス
-
JR京浜東北線「新杉田」駅より徒歩6分
京浜急行線「杉田」駅より徒歩10分
京浜急行線「屏風浦」駅より徒歩11分
- 間取り
- 2LDK
- 専有面積
- 60.27㎡
- バルコニー面積
- 10.62㎡
- 向き
- 南西
- 築年月
- 2011年11月
- 所在階数
- 7階 地上7階
- 建物構造
- 鉄筋コンクリート造
- 総戸数
- 52戸
- 施工会社
- 株式会社三木組
- 管理会社
- 伏見管理サービス株式会社
- 管理費
- 7,350 円/月
- 管理人状況
- 日勤
- 管理形態
- 管理会社に全部委託
- 修繕積立金
- 15,220 円/月
- 現況
- 居住中
- 引渡時期
- 期日指定(2026年11月下旬)
- 取引態様
- 媒介
- 駐車場
- 空無 14,000円~25,000円
- 土地権利
- 所有権
- ペットの飼育
- ペット可
- 補足事項
- ・駐輪場:月額200~ 200円(空有)
・バイク置場:月額1,500円(空無)
・現況有姿での取引となり、瑕疵担保責任免責といたします。
周辺地図
動画で解説
ローンシミュレーション
※金利は元利均等方式で計算しており、返済年数は5〜35年まで変更できます。
※ボーナスは年2回で計算しており、毎月の支払金額とは別で1回に増加する金額を300万円まで入力できます。
-
- 返済期間
-
年
-
- 金利
-
%
-
- ボーナス時の加算金額
-
万円
-
- 頭金
-
万円
-
- 借入金額
-
万円
-
- 毎月の返済金額
-
円/月
この物件を見た人は
こんな物件も見ています
- 見学予約
- お問い合わせ
同じ地域の物件
同じ沿線の物件
マンション名検索
- 掲載物件数
- 4354件
サービス・運営メディア
不動産の売却・購入を
ご検討中の方へ
年中無休
受付時間 9:30〜18:30
グランドネクスト株式会社国土交通大臣(2)第9883号
-
新宿オフィス
東京都新宿区新宿1丁目3-12
壱丁目参番館 3階 -
横浜オフィス
神奈川県横浜市中区桜木町2丁目2
港陽ビル 5階 -
大宮オフィス
埼玉県さいたま市大宮区宮町二丁目93-2
BIZcomfort大宮東口 5階 -
津田沼オフィス
千葉県船橋市前原西2丁目14-2
津田沼駅前安田ビル別館 2階 -
秋葉原オフィス
東京都千代田区神田佐久間河岸55
朝風染常ビル 2階
グランドネクスト販売
株式会社東京都知事(2)第105105号
-
池袋オフィス
東京都豊島区池袋2丁目13番4号
天翔池袋西口ビル 5階
お問い合わせ先



















・セキュリティ面に配慮してオートロックを完備しているので、安心してお住まいいただけます。
・宅配ボックスが備え付けられているため急なお出かけの際にも荷物を受け取ることができます。
・大切なペットと一緒に暮らすことができます。これから飼育をお考えの方にもおすすめです。
・お部屋は7階部分の収納豊富な2LDKタイプ。南西向きバルコニーにつき陽当たり通風良好です。
<販売価格について>
2026年2月26日での掲載開始した時点の価格は4,180万円です。