クリオ海老名六番館 403号室
新規登録日:2026年02月25日
最終更新日:2026年02月25日
-
- 価格
- 4,780万円
-
- 所在地/交通
-
神奈川県海老名市中央3-4-6
小田急小田原線「海老名」駅より徒歩7分
-
- 間取り/専有面積
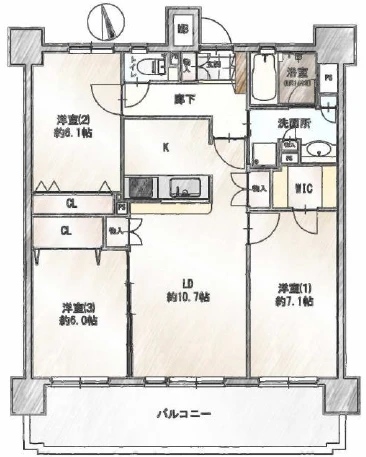
- 3LDK+WIC/76.05㎡
物件情報
- 所在地
-
神奈川県海老名市中央3-4-6
地図・周辺情報
- アクセス
-
小田急小田原線「海老名」駅より徒歩7分
相鉄本線「海老名」駅より徒歩7分
JR相模線「海老名」駅より徒歩7分
- 間取り
- 3LDK+WIC
- 専有面積
- 76.05㎡
- バルコニー面積
- 15.14㎡
- 向き
- 南
- 築年月
- 2000年07月
- 所在階数
- 4階 地上15階
- 建物構造
- 鉄骨鉄筋コンクリート造
- 総戸数
- 97戸
- 施工会社
- -
- 管理会社
- 株式会社長谷工コミュニティ
- 管理費
- 8,560 円/月
- 管理人状況
- 日勤
- 管理形態
- 管理会社に全部委託
- 修繕積立金
- 22,487 円/月
- 現況
- 空室
- 引渡時期
- 相談
- 取引態様
- 媒介
- 駐車場
- 要確認
- 土地権利
- 所有権
- ペットの飼育
- ペット不可
- 補足事項
- ※最新の金額については管理会社へお問い合わせくだい。
周辺地図
動画で解説
ローンシミュレーション
※金利は元利均等方式で計算しており、返済年数は5〜35年まで変更できます。
※ボーナスは年2回で計算しており、毎月の支払金額とは別で1回に増加する金額を300万円まで入力できます。
-
- 返済期間
-
年
-
- 金利
-
%
-
- ボーナス時の加算金額
-
万円
-
- 頭金
-
万円
-
- 借入金額
-
万円
-
- 毎月の返済金額
-
円/月
この物件を見た人は
こんな物件も見ています
- 見学予約
- お問い合わせ
同じ地域の物件
同じ沿線の物件
マンション名検索
- 掲載物件数
- 4355件
サービス・運営メディア
不動産の売却・購入を
ご検討中の方へ
年中無休
受付時間 9:30〜18:30
グランドネクスト株式会社国土交通大臣(1)第9883号
-
新宿オフィス
東京都新宿区新宿1丁目3-12
壱丁目参番館 3階 -
横浜オフィス
神奈川県横浜市中区桜木町2丁目2
港陽ビル 5階 -
大宮オフィス
埼玉県さいたま市大宮区宮町二丁目93-2
BIZcomfort大宮東口 5階 -
津田沼オフィス
千葉県船橋市前原西2丁目14-2
津田沼駅前安田ビル別館 2階 -
秋葉原オフィス
東京都千代田区神田佐久間河岸55
朝風染常ビル 2階
グランドネクスト販売
株式会社東京都知事(1)第105105号
-
池袋オフィス
東京都豊島区池袋2丁目13番4号
天翔池袋西口ビル 5階
お問い合わせ先



















・「海老名」駅より徒歩7分の好立地。複数路線利用可能で各方面にアクセス至便となっております。
・コンビニエンスストアやスーパーなども徒歩圏内。毎日のお買い物に大変便利な住環境です。
・お部屋は4階部分の3LDK。WIC付で収納豊富。すっきり快適なお部屋でお過ごしいただけます。
・リフォーム済、陽当たり眺望通風良好なお部屋で快適にお過ごしいただけます。
<主なリノベーション内容>(令和7年12月施工完了)
システムキッチン/ユニットバス/洗面台/トイレ/クロス張替/床張替/建具/その他
<販売価格について>
2026年2月25日での掲載開始した時点の価格は4,780万円です。