パークシティ武蔵小杉ザ・ガーデン タワーズイースト2705号室
新規登録日:2026年02月18日
最終更新日:2026年02月18日
-
- 価格
- 1億3,880万円
-
- 所在地/交通
-
神奈川県川崎市中原区小杉町2-276-1
JR横須賀線「武蔵小杉」駅より徒歩4分
-
- 間取り/専有面積
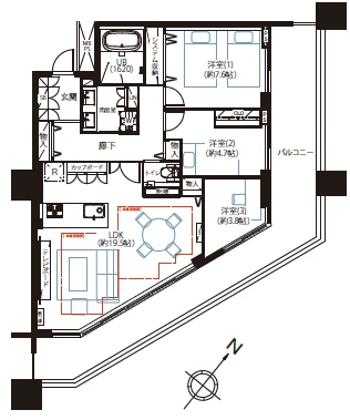
- 2LDK+WIC+SIC+TR/73.47㎡
物件情報
- 所在地
-
神奈川県川崎市中原区小杉町2-276-1
地図・周辺情報
- アクセス
-
JR横須賀線「武蔵小杉」駅より徒歩4分
JR南武線「武蔵小杉」駅より徒歩4分
東急目黒線「武蔵小杉」駅より徒歩5分
- 間取り
- 2LDK+WIC+SIC+TR
- 専有面積
- 73.47㎡
- バルコニー面積
- 6.77㎡
- 向き
- 南
- 築年月
- 2017年11月
- 所在階数
- 27階 地上53階/地下1階
- 建物構造
- 鉄骨造・ 鉄筋コンクリート造
- 総戸数
- 601戸
- 施工会社
- 株式会社竹中工務店
- 管理会社
- 三井不動産レジデンシャルサービス株式会社
- 管理費
- 13,530 円/月
- 管理人状況
- 常駐
- 管理形態
- 管理会社に全部委託
- 修繕積立金
- 12,730 円/月
- 現況
- 空室
- 引渡時期
- 相談
- 取引態様
- 媒介
- 駐車場
- 空有 19,000円~
- 土地権利
- 所有権
- ペットの飼育
- ペット相談
- 補足事項
- ・バイク置場:有
・駐輪場:有
・楽器演奏:相談(規約に基づく)
・ペット飼育:要承認、細則あり
・インターネット接続料:月額946円
・コミュニティ形成費:月額500円
・住宅管理費:A棟13,530円、AB棟1,120円
・全体管理費:A棟8,990円、AB棟1,090円
・住宅修繕積立金:A棟12,730円、AB棟370円
・全体修繕積立金:A棟10,330円、AB棟520円
・トランクルーム面積:1.28㎡
・サービススペース面積:6.22㎡
周辺地図
動画で解説
ローンシミュレーション
※金利は元利均等方式で計算しており、返済年数は5〜35年まで変更できます。
※ボーナスは年2回で計算しており、毎月の支払金額とは別で1回に増加する金額を300万円まで入力できます。
-
- 返済期間
-
年
-
- 金利
-
%
-
- ボーナス時の加算金額
-
万円
-
- 頭金
-
万円
-
- 借入金額
-
万円
-
- 毎月の返済金額
-
円/月
この物件を見た人は
こんな物件も見ています
- 見学予約
- お問い合わせ
同じ地域の物件
同じ沿線の物件
マンション名検索
- 掲載物件数
- 4334件
サービス・運営メディア
不動産の売却・購入を
ご検討中の方へ
年中無休
受付時間 9:30〜18:30
グランドネクスト株式会社国土交通大臣(1)第9883号
-
新宿オフィス
東京都新宿区新宿1丁目3-12
壱丁目参番館 3階 -
横浜オフィス
神奈川県横浜市中区桜木町2丁目2
港陽ビル 5階 -
大宮オフィス
埼玉県さいたま市大宮区宮町二丁目93-2
BIZcomfort大宮東口 5階 -
津田沼オフィス
千葉県船橋市前原西2丁目14-2
津田沼駅前安田ビル別館 2階 -
秋葉原オフィス
東京都千代田区神田佐久間河岸55
朝風染常ビル 2階
グランドネクスト販売
株式会社東京都知事(1)第105105号
-
池袋オフィス
東京都豊島区池袋2丁目13番4号
天翔池袋西口ビル 5階
お問い合わせ先



















・「武蔵小杉」駅より徒歩4分の好立地に建つ、総戸数1223戸の大規模ツインタワーマンションです。
・複数路線利用可能な好立地で各方面へのアクセス良好。毎日の通勤通学に大変便利です。
・キッズルームやスタディルーム、ライブラリーなど生活を豊かにする共用施設が充実しています。
・お部屋は27階部分の2LDKタイプ。角部屋、南向きバルコニーにつき陽当たり、眺望も良好です。
<主なリノベーション内容>(令和7年11月施工完了)
トイレ/クロス張替/その他
<販売価格について>
2026年2月18日での掲載開始した時点の価格は1億3,880万円です。