クレド磯子クレアール 2階
-
- 価格
- 5,199万円
-
- 所在地/交通
-
神奈川県横浜市磯子区森1-8-5
JR京浜東北線「磯子」駅より徒歩3分
-
- 間取り/専有面積
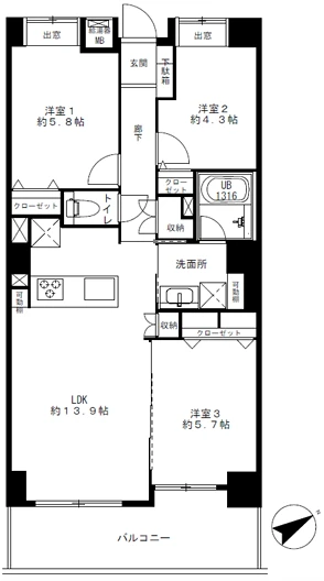
- 3LDK/66.21㎡
物件情報
- 所在地
-
神奈川県横浜市磯子区森1-8-5
地図・周辺情報
- アクセス
-
JR京浜東北線「磯子」駅より徒歩3分
JR根岸線「磯子」駅より徒歩3分
- 間取り
- 3LDK
- 専有面積
- 66.21㎡
- バルコニー面積
- 10.65㎡
- 向き
- 南東
- 築年月
- 1996年08月
- 所在階数
- 2階 地上10階/地下2階
- 建物構造
- 鉄骨造・ 鉄筋コンクリート造
- 総戸数
- 74戸
- 施工会社
- 大成建設株式会社
- 管理会社
- 日本ハウズイング株式会社
- 管理費
- 13,240 円/月
- 管理人状況
- 日勤
- 管理形態
- 管理会社に全部委託
- 修繕積立金
- 19,200 円/月
- 現況
- 空室
- 引渡時期
- 相談(2026年2月)
- 取引態様
- 媒介
- 駐車場
- 空有 21,000円
- 土地権利
- 所有権
- ペットの飼育
- ペット可
- 補足事項
- ・駐輪場:月額100円(空有)
・バイク置場:月額300~600円(相談)
・トランクルーム:月額300~950円(空有)
周辺地図
動画で解説
ローンシミュレーション
※金利は元利均等方式で計算しており、返済年数は5〜35年まで変更できます。
※ボーナスは年2回で計算しており、毎月の支払金額とは別で1回に増加する金額を300万円まで入力できます。
-
- 返済期間
-
年
-
- 金利
-
%
-
- ボーナス時の加算金額
-
万円
-
- 頭金
-
万円
-
- 借入金額
-
万円
-
- 毎月の返済金額
-
円/月
この物件を見た人は
こんな物件も見ています
- 見学予約
- お問い合わせ
同じ地域の物件
同じ沿線の物件
マンション名検索
- 掲載物件数
- 4447件
同じ地域の物件
-
- マンション
- 新価格1月31日
日神パレステージ磯子の森 7番館3階
2,690万円
JR京浜東北線「磯子」駅より徒歩6分
3LDK 63.63㎡ 2000年12月 3階 地上4階/地下1階 南西
-
- マンション
磯子センチュリーマンション 435号室
2,680万円
JR京浜東北線「磯子」駅より徒歩6分
3LDK+SIC 61.97㎡ 1977年09月 4階 地上11階 南東
-
- マンション
- 新価格1月31日
ファミールガーデン横浜・屏風浦 307号室
4,180万円
京浜急行線「屏風浦」駅より徒歩5分
3LDK 75.69㎡ 2001年12月 3階 地上10階 南東
-
- マンション
日神パレステージ磯子の森 2番館202号室
3,790万円
JR根岸線「磯子」駅より徒歩6分
3LDK+WIC 62.41㎡ 2000年09月 2階 地上5階/地下1階 南東
-
- マンション
ヴェレーナシティパレ・ド・シエル・カルティエ 2-104号室
5,280万円
京浜急行線「屏風浦」駅より徒歩8分
3LDK+WIC 73.50㎡ 2017年01月 1階 地上4階 西
サービス・運営メディア
不動産の売却・購入を
ご検討中の方へ
年中無休
受付時間 9:30〜18:30
グランドネクスト株式会社国土交通大臣(1)第9883号
-
新宿オフィス
東京都新宿区新宿1丁目3-12
壱丁目参番館 3階 -
横浜オフィス
神奈川県横浜市中区桜木町2丁目2
港陽ビル 5階 -
大宮オフィス
埼玉県さいたま市大宮区宮町二丁目93-2
BIZcomfort大宮東口 5階 -
津田沼オフィス
千葉県船橋市前原西2丁目14-2
津田沼駅前安田ビル別館 2階 -
秋葉原オフィス
東京都千代田区神田佐久間河岸55
朝風染常ビル 2階
グランドネクスト販売
株式会社東京都知事(1)第105105号
-
池袋オフィス
東京都豊島区池袋2丁目13番4号
天翔池袋西口ビル 5階
お問い合わせ先



















・大切なペットと一緒に暮らすことができます。これから飼育をお考えの方にもおすすめです。
・セキュリティ面に配慮してオートロックを完備しているので、安心してお住まいいただけます。
・宅配ボックスが備え付けられているため急なお出かけの際にも荷物を受け取ることができます。
・お部屋は2階部分の3LDKタイプ。新規リノベーション物件につき室内は綺麗で快適です。
<主なリノベーション内容>(令和8年1月上旬施工完了)
システムキッチン/ユニットバス/洗面台/トイレ/クロス張替/床張替/建具/給湯器/その他
<販売価格について>
2026年1月16日での掲載開始した時点の価格は5,199万円です。