コスモ横浜和田町ヒルズ 803号室
新規登録日:2026年01月15日
最終更新日:2026年01月15日
-
- 価格
- 4,880万円
-
- 所在地/交通
-
神奈川県横浜市保土ケ谷区和田2-17-6
相鉄本線「和田町」駅より徒歩8分
-
- 間取り/専有面積
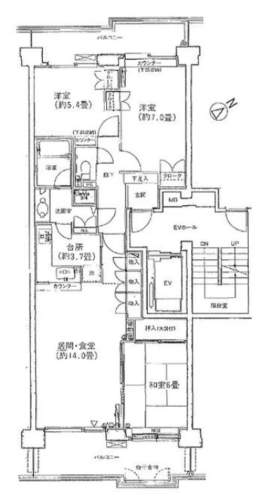
- 4SLDK/117.60㎡
物件情報
- 所在地
-
神奈川県横浜市保土ケ谷区和田2-17-6
地図・周辺情報
- アクセス
-
相鉄本線「和田町」駅より徒歩8分
- 間取り
- 4SLDK
- 専有面積
- 117.60㎡
- バルコニー面積
- 10.60㎡
- 向き
- 南西
- 築年月
- 1994年09月
- 所在階数
- 8~9階 地上14階
- 建物構造
- 鉄筋コンクリート造
- 総戸数
- 108戸
- 施工会社
- 東海興業株式会社
- 管理会社
- 大和ライフネクスト株式会社
- 管理費
- 29,000 円/月
- 管理人状況
- 日勤
- 管理形態
- 管理会社に全部委託
- 修繕積立金
- 24,600 円/月
- 現況
- 空室
- 引渡時期
- 相談
- 取引態様
- 媒介
- 駐車場
- 空無 16,500円~24,000円
- 土地権利
- 所有権
- ペットの飼育
- ペット不可
- 補足事項
- ・大規模修繕工事実施済(2023年2月)
・駐輪場:年額3,600円 ※シール貼付要(無料)
・ルーフバルコニー面積:6.00㎡(使用料無償)
・エアコン1基付き
※謄本上は9~10 階部分です
周辺地図
動画で解説
ローンシミュレーション
※金利は元利均等方式で計算しており、返済年数は5〜35年まで変更できます。
※ボーナスは年2回で計算しており、毎月の支払金額とは別で1回に増加する金額を300万円まで入力できます。
-
- 返済期間
-
年
-
- 金利
-
%
-
- ボーナス時の加算金額
-
万円
-
- 頭金
-
万円
-
- 借入金額
-
万円
-
- 毎月の返済金額
-
円/月
この物件を見た人は
こんな物件も見ています
- 見学予約
- お問い合わせ
同じ地域の物件
同じ沿線の物件
マンション名検索
- 掲載物件数
- 4724件
サービス・運営メディア
不動産の売却・購入を
ご検討中の方へ
年中無休
受付時間 9:30〜18:30
グランドネクスト株式会社国土交通大臣(1)第9883号
-
新宿オフィス
東京都新宿区新宿1丁目3-12
壱丁目参番館 3階 -
横浜オフィス
神奈川県横浜市中区桜木町2丁目2
港陽ビル 5階 -
大宮オフィス
埼玉県さいたま市大宮区宮町二丁目93-2
BIZcomfort大宮東口 5階 -
津田沼オフィス
千葉県船橋市前原西2丁目14-2
津田沼駅前安田ビル別館 2階 -
秋葉原オフィス
東京都千代田区神田佐久間河岸55
朝風染常ビル 2階
グランドネクスト販売
株式会社東京都知事(1)第105105号
-
池袋オフィス
東京都豊島区池袋2丁目13番4号
天翔池袋西口ビル 5階
お問い合わせ先



















・相鉄線「和田町」より徒歩8分。管理体制良好な総戸数108戸の大規模マンションです。
・周辺にはコンビニエンスストアやスーパーなどがあり毎日のお買い物に大変便利な住環境です。
・オートロックが完備されていますので、セキュリティ面でも安心してお住まいいただけます。
・お部屋は8~9階部分の角部屋4SLDKタイプ。陽当たり、通風良好なメゾネット住戸です。
<主なリノベーション内容>(令和7年8月22日施工完了)
システムキッチン/ユニットバス/洗面台/トイレ/クロス張替/床張替/建具/その他
<販売価格について>
2026年1月15日での掲載開始した時点の価格は4,880万円です。
【同マンション 502号室 3LDK】も販売中です。詳しくはこちらをクリック!
【同マンション 14階 3LDK+2WIC】も販売中です。詳しくはこちらをクリック!