ヴェラハイツ隅田公園 1002号室
新規登録日:2026年01月15日
最終更新日:2026年01月15日
-
- 価格
- 5,480万円
-
- 所在地/交通
-
東京都墨田区向島1-8-1
都営地下鉄浅草線「浅草」駅より徒歩10分
-
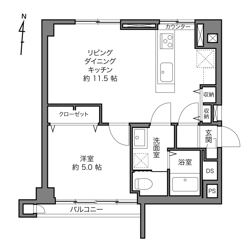
- 間取り/専有面積
- 1LDK/45.72㎡
物件情報
- 所在地
-
東京都墨田区向島1-8-1
地図・周辺情報
- アクセス
-
都営地下鉄浅草線「浅草」駅より徒歩10分
東京メトロ銀座線「浅草」駅より徒歩10分
東武伊勢崎線「浅草」駅より徒歩10分
- 間取り
- 1LDK
- 専有面積
- 45.72㎡
- バルコニー面積
- 6.55㎡
- 向き
- 南東
- 築年月
- 1988年06月
- 所在階数
- 10階 地上11階
- 建物構造
- 鉄骨鉄筋コンクリート造
- 総戸数
- 37戸
- 施工会社
- -
- 管理会社
- 株式会社東急コミュニティー
- 管理費
- 13,370 円/月
- 管理人状況
- 巡回
- 管理形態
- 管理会社に全部委託
- 修繕積立金
- 15,320 円/月
- 現況
- 空室
- 引渡時期
- 相談
- 取引態様
- 媒介
- 駐車場
- 無
- 土地権利
- 所有権
- ペットの飼育
- ペット不可
- 補足事項
- ・町内会費:月額200円
・駐輪場:有(月額300円~500円)
・ミニバイク置場:有(月額1,000円)
・2021年大規模修繕工事実施済み
周辺地図
動画で解説
ローンシミュレーション
※金利は元利均等方式で計算しており、返済年数は5〜35年まで変更できます。
※ボーナスは年2回で計算しており、毎月の支払金額とは別で1回に増加する金額を300万円まで入力できます。
-
- 返済期間
-
年
-
- 金利
-
%
-
- ボーナス時の加算金額
-
万円
-
- 頭金
-
万円
-
- 借入金額
-
万円
-
- 毎月の返済金額
-
円/月
この物件を見た人は
こんな物件も見ています
- 見学予約
- お問い合わせ
同じ地域の物件
同じ沿線の物件
マンション名検索
- 掲載物件数
- 4722件
サービス・運営メディア
不動産の売却・購入を
ご検討中の方へ
年中無休
受付時間 9:30〜18:30
グランドネクスト株式会社国土交通大臣(1)第9883号
-
新宿オフィス
東京都新宿区新宿1丁目3-12
壱丁目参番館 3階 -
横浜オフィス
神奈川県横浜市中区桜木町2丁目2
港陽ビル 5階 -
大宮オフィス
埼玉県さいたま市大宮区宮町二丁目93-2
BIZcomfort大宮東口 5階 -
津田沼オフィス
千葉県船橋市前原西2丁目14-2
津田沼駅前安田ビル別館 2階 -
秋葉原オフィス
東京都千代田区神田佐久間河岸55
朝風染常ビル 2階
グランドネクスト販売
株式会社東京都知事(1)第105105号
-
池袋オフィス
東京都豊島区池袋2丁目13番4号
天翔池袋西口ビル 5階
お問い合わせ先



















・「浅草」駅より徒歩10分。複数路線利用可能な好立地に建つ、管理体制良好なマンションです。
・小江戸の街が周辺に広がる、風情や情緒ある街。商業施設多数もあり、生活至便な環境です。
・10階部分の1LDK。バルコニーから"東京スカイツリー"を望む、陽当たりと眺望が良好なお部屋です。
<主なリノベーション内容>(令和7年11月12日施工完了)
システムキッチン/ユニットバス/洗面台/トイレ/クロス張替/床張替/建具/その他
<販売価格について>
2026年1月15日での掲載開始した時点の価格は5,480万円です。