パシフィックパレス元浅草 6階
新規登録日:2026年01月14日
最終更新日:2026年01月14日
-
- 価格
- 6,080万円
-
- 所在地/交通
-
東京都台東区元浅草1-6-16
都営地下鉄大江戸線「新御徒町」駅より徒歩3分
-
- 間取り/専有面積
- 2DK+WIC/47.79㎡
物件情報
- 所在地
-
東京都台東区元浅草1-6-16
地図・周辺情報
- アクセス
-
都営地下鉄大江戸線「新御徒町」駅より徒歩3分
東京メトロ銀座線「稲荷町」駅より徒歩5分
JR山手線「上野」駅より徒歩13分
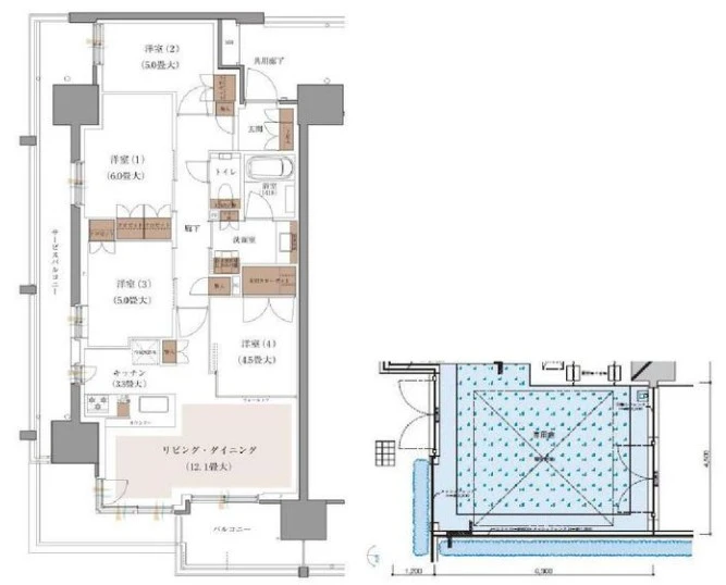
- 間取り
- 2DK+WIC
- 専有面積
- 47.79㎡
- バルコニー面積
- 5.77㎡
- 向き
- 南東
- 築年月
- 1984年10月
- 所在階数
- 6階 地上10階
- 建物構造
- 鉄骨鉄筋コンクリート造
- 総戸数
- 40戸
- 施工会社
- 飛鳥建設株式会社東京支社
- 管理会社
- 野村不動産パートナーズ株式会社
- 管理費
- 12,617 円/月
- 管理人状況
- 日勤
- 管理形態
- 管理会社に全部委託
- 修繕積立金
- 12,644 円/月
- 現況
- 居住中
- 引渡時期
- 相談
- 取引態様
- 媒介
- 駐車場
- 無
- 土地権利
- 所有権
- ペットの飼育
- ペット要確認
- 補足事項
- ・24時間ゴミ出し可能
周辺地図
動画で解説
ローンシミュレーション
※金利は元利均等方式で計算しており、返済年数は5〜35年まで変更できます。
※ボーナスは年2回で計算しており、毎月の支払金額とは別で1回に増加する金額を300万円まで入力できます。
-
- 返済期間
-
年
-
- 金利
-
%
-
- ボーナス時の加算金額
-
万円
-
- 頭金
-
万円
-
- 借入金額
-
万円
-
- 毎月の返済金額
-
円/月
この物件を見た人は
こんな物件も見ています
- 見学予約
- お問い合わせ
同じ地域の物件
同じ沿線の物件
マンション名検索
- 掲載物件数
- 4694件
サービス・運営メディア
不動産の売却・購入を
ご検討中の方へ
年中無休
受付時間 9:30〜18:30
グランドネクスト株式会社国土交通大臣(1)第9883号
-
新宿オフィス
東京都新宿区新宿1丁目3-12
壱丁目参番館 3階 -
横浜オフィス
神奈川県横浜市中区桜木町2丁目2
港陽ビル 5階 -
大宮オフィス
埼玉県さいたま市大宮区宮町二丁目93-2
BIZcomfort大宮東口 5階 -
津田沼オフィス
千葉県船橋市前原西2丁目14-2
津田沼駅前安田ビル別館 2階 -
秋葉原オフィス
東京都千代田区神田佐久間河岸55
朝風染常ビル 2階
グランドネクスト販売
株式会社東京都知事(1)第105105号
-
池袋オフィス
東京都豊島区池袋2丁目13番4号
天翔池袋西口ビル 5階
お問い合わせ先



















・都営大江戸線「新御徒町」駅より徒歩3分の好立地。複数路線利用可能でアクセス至便です。
・嬉しい宅配ボックスを完備。不在時や急な外出時等にも安心してお荷物をお受け取りいただけます。
・エントランスにはオートロック付き。セキュリティ面でも安心してお住まいいただけます。
・至近にはコンビニエンスストアやスーパー、ドラッグストアなどもあり生活至便な住環境です。
・お部屋は6階部分の2DK。WIC付で収納豊富。すっきり快適なお部屋でお過ごしいただけます。
・上層階のため眺望陽当たり良好。室内明るいお部屋となっております。
<販売価格について>
2026年1月14日での掲載開始した時点の価格は6,080万円です。