エヴァーグリーン青葉の森 306号室
新規登録日:2026年01月13日
最終更新日:2026年01月13日
-
- 価格
- 2,780万円
-
- 所在地/交通
-
千葉県千葉市中央区末広4-16-11
京成千原線「千葉寺」駅より徒歩2分
-
- 間取り/専有面積
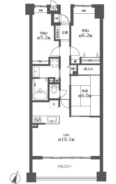
- 3LDK+TR/74.05㎡
物件情報
- 所在地
-
千葉県千葉市中央区末広4-16-11
地図・周辺情報
- アクセス
-
京成千原線「千葉寺」駅より徒歩2分
JR京葉線「蘇我」駅より徒歩18分
JR内房線「蘇我」駅より徒歩18分
- 間取り
- 3LDK+TR
- 専有面積
- 74.05㎡
- バルコニー面積
- 11.89㎡
- 向き
- 南東
- 築年月
- 1998年03月
- 所在階数
- 3階 地上6階
- 建物構造
- 鉄筋コンクリート造
- 総戸数
- 31戸
- 施工会社
- 多田建設株式会社
- 管理会社
- 京成ビルサービス株式会社
- 管理費
- 13,100 円/月
- 管理人状況
- 日勤
- 管理形態
- 管理会社に全部委託
- 修繕積立金
- 28,800 円/月
- 現況
- 空室
- 引渡時期
- 予定(2026年3月中旬)
- 取引態様
- 媒介
- 駐車場
- 空無 9,900円~11,000円
- 土地権利
- 所有権
- ペットの飼育
- ペット可
- 補足事項
- ・駐輪場:月額100円
・バイク置場:月額1,000円
・長期修繕計画書あり(2025~2054年)
・大規模修繕予定:検討中
・修繕積立金等改定予定:なし
・固定資産税額:年間116,228円(令和7年度)
周辺地図
動画で解説
ローンシミュレーション
※金利は元利均等方式で計算しており、返済年数は5〜35年まで変更できます。
※ボーナスは年2回で計算しており、毎月の支払金額とは別で1回に増加する金額を300万円まで入力できます。
-
- 返済期間
-
年
-
- 金利
-
%
-
- ボーナス時の加算金額
-
万円
-
- 頭金
-
万円
-
- 借入金額
-
万円
-
- 毎月の返済金額
-
円/月
この物件を見た人は
こんな物件も見ています
- 見学予約
- お問い合わせ
同じ地域の物件
同じ沿線の物件
マンション名検索
- 掲載物件数
- 4694件
サービス・運営メディア
不動産の売却・購入を
ご検討中の方へ
年中無休
受付時間 9:30〜18:30
グランドネクスト株式会社国土交通大臣(1)第9883号
-
新宿オフィス
東京都新宿区新宿1丁目3-12
壱丁目参番館 3階 -
横浜オフィス
神奈川県横浜市中区桜木町2丁目2
港陽ビル 5階 -
大宮オフィス
埼玉県さいたま市大宮区宮町二丁目93-2
BIZcomfort大宮東口 5階 -
津田沼オフィス
千葉県船橋市前原西2丁目14-2
津田沼駅前安田ビル別館 2階 -
秋葉原オフィス
東京都千代田区神田佐久間河岸55
朝風染常ビル 2階
グランドネクスト販売
株式会社東京都知事(1)第105105号
-
池袋オフィス
東京都豊島区池袋2丁目13番4号
天翔池袋西口ビル 5階
お問い合わせ先



















・京成千原線「千葉寺」駅より徒歩2分の好立地に建つ、総戸数31戸の地上6階建てマンションです。
・オートロックが完備されていますので、セキュリティ面でも安心してお住まいいただけます。
・ペット飼育可能の物件です。現在飼われている方、これから飼育をお考えの方にもおすすめです。
・お部屋は3階部分の3LDKタイプ。リビングは天井高2.6m&ハイサッシ仕様につき開放感が抜群です。
<主なリノベーション内容>(令和8年2月28日完成予定)
システムキッチン/ユニットバス/洗面台/トイレ/クロス張替/床張替/建具/その他
<販売価格について>
2026年1月13日での掲載開始した時点の価格は2,780万円です。