メイフェア・ミュゼ・レトワールセンター南駅前 1103号室
新規登録日:2025年12月24日
最終更新日:2026年03月06日
-
- 価格
- 8,780万円3月6日 値下げ
-
- 所在地/交通
-
神奈川県横浜市都筑区茅ケ崎中央23-16
横浜市営地下鉄ブルーライン「センター南」駅より徒歩3分
-
- 間取り/専有面積
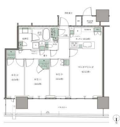
- 3LDK+2WIC+TR/81.13㎡
物件情報
- 所在地
-
神奈川県横浜市都筑区茅ケ崎中央23-16
地図・周辺情報
- アクセス
-
横浜市営地下鉄ブルーライン「センター南」駅より徒歩3分
横浜市営地下鉄グリーンライン「センター南」駅より徒歩3分
- 間取り
- 3LDK+2WIC+TR
- 専有面積
- 81.13㎡
- バルコニー面積
- 12.33㎡
- 向き
- 南東
- 築年月
- 1998年11月
- 所在階数
- 11階 地上11階
- 建物構造
- 鉄筋コンクリート造・ 鉄骨鉄筋コンクリート造
- 総戸数
- 75戸
- 施工会社
- 駿河建設株式会社
- 管理会社
- 三井不動産レジデンシャルサービス株式会社
- 管理費
- 11,800 円/月
- 管理人状況
- 日勤
- 管理形態
- 管理会社に全部委託
- 修繕積立金
- 11,800 円/月
- 現況
- 空室
- 引渡時期
- 相談
- 取引態様
- 媒介
- 駐車場
- 空無
- 土地権利
- 所有権
- ペットの飼育
- ペット不可
- 補足事項
- ・駐輪場:有
・CATV使用料:月額850円
・楽器演奏:相談(規約に基づく、時間制限あり)
・2021年防犯カメラ更新、増設工事
・2023年集合郵便受取替工事
・2024年加圧給水ポンプ整備、排水ポンプ更新、機械式駐輪場装置整備
・サービスバルコニー面積:1.92㎡
周辺地図
動画で解説
ローンシミュレーション
※金利は元利均等方式で計算しており、返済年数は5〜35年まで変更できます。
※ボーナスは年2回で計算しており、毎月の支払金額とは別で1回に増加する金額を300万円まで入力できます。
-
- 返済期間
-
年
-
- 金利
-
%
-
- ボーナス時の加算金額
-
万円
-
- 頭金
-
万円
-
- 借入金額
-
万円
-
- 毎月の返済金額
-
円/月
この物件を見た人は
こんな物件も見ています
- 見学予約
- お問い合わせ
同じ地域の物件
同じ沿線の物件
マンション名検索
- 掲載物件数
- 4328件
サービス・運営メディア
不動産の売却・購入を
ご検討中の方へ
年中無休
受付時間 9:30〜18:30
グランドネクスト株式会社国土交通大臣(2)第9883号
-
新宿オフィス
東京都新宿区新宿1丁目3-12
壱丁目参番館 3階 -
横浜オフィス
神奈川県横浜市中区桜木町2丁目2
港陽ビル 5階 -
大宮オフィス
埼玉県さいたま市大宮区宮町二丁目93-2
BIZcomfort大宮東口 5階 -
津田沼オフィス
千葉県船橋市前原西2丁目14-2
津田沼駅前安田ビル別館 2階 -
秋葉原オフィス
東京都千代田区神田佐久間河岸55
朝風染常ビル 2階
グランドネクスト販売
株式会社東京都知事(2)第105105号
-
池袋オフィス
東京都豊島区池袋2丁目13番4号
天翔池袋西口ビル 5階
お問い合わせ先



















・横浜市ブルーライン「センター南」駅より徒歩3分の好立地に建つ、地上11階建てマンションです。
・オートロックが完備されていますので、セキュリティ面でも安心してお住まいいただけます。
・お忙しいご家庭にもご好評な宅配ボックスを完備。不在時のお荷物のお受け取りも可能です。
・お部屋は11階部分の3LDK。最上階の角部屋、南東向きバルコニーにつき陽当たり、眺望良好です。
<主なリノベーション内容>(令和7年12月完成予定)
システムキッチン/ユニットバス/洗面台/トイレ/クロス張替/床張替/建具/その他
<販売価格について>
2025年12月24日での掲載開始した時点の価格は9,280万円です。