メイツ東綾瀬 11階
新規登録日:2025年12月23日
最終更新日:2025年12月23日
-
- 価格
- 6,280万円
-
- 所在地/交通
-
東京都足立区東綾瀬1-11-1
東京メトロ千代田線「綾瀬」駅より徒歩9分
-
- 間取り/専有面積
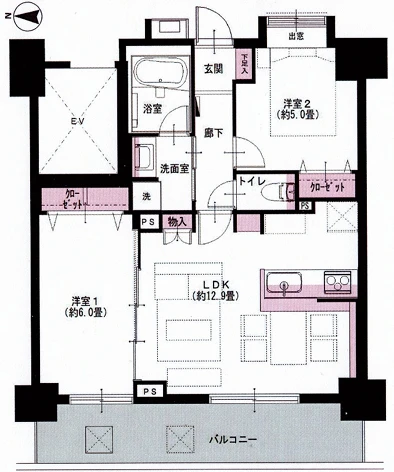
- 2LDK+SIC/58.11㎡
物件情報
- 所在地
-
東京都足立区東綾瀬1-11-1
地図・周辺情報
- アクセス
-
東京メトロ千代田線「綾瀬」駅より徒歩9分
- 間取り
- 2LDK+SIC
- 専有面積
- 58.11㎡
- バルコニー面積
- 10.80㎡
- 向き
- 南西
- 築年月
- 2022年01月
- 所在階数
- 11階 地上12階
- 建物構造
- 鉄筋コンクリート造
- 総戸数
- 80戸
- 施工会社
- 新日本建設株式会社
- 管理会社
- 名鉄コミュニティライフ株式会社
- 管理費
- 10,900 円/月
- 管理人状況
- 日勤
- 管理形態
- 管理会社に全部委託
- 修繕積立金
- 5,800 円/月
- 現況
- 居住中
- 引渡時期
- 相談
- 取引態様
- 媒介
- 駐車場
- 有 13,000円~16,000円
- 土地権利
- 所有権
- ペットの飼育
- ペット可
- 補足事項
- ・駐輪場:月額100円~500円
・ミニバイク置場:月額2,000円
周辺地図
動画で解説
ローンシミュレーション
※金利は元利均等方式で計算しており、返済年数は5〜35年まで変更できます。
※ボーナスは年2回で計算しており、毎月の支払金額とは別で1回に増加する金額を300万円まで入力できます。
-
- 返済期間
-
年
-
- 金利
-
%
-
- ボーナス時の加算金額
-
万円
-
- 頭金
-
万円
-
- 借入金額
-
万円
-
- 毎月の返済金額
-
円/月
この物件を見た人は
こんな物件も見ています
- 見学予約
- お問い合わせ
同じ地域の物件
同じ沿線の物件
マンション名検索
- 掲載物件数
- 4334件
サービス・運営メディア
不動産の売却・購入を
ご検討中の方へ
年中無休
受付時間 9:30〜18:30
グランドネクスト株式会社国土交通大臣(1)第9883号
-
新宿オフィス
東京都新宿区新宿1丁目3-12
壱丁目参番館 3階 -
横浜オフィス
神奈川県横浜市中区桜木町2丁目2
港陽ビル 5階 -
大宮オフィス
埼玉県さいたま市大宮区宮町二丁目93-2
BIZcomfort大宮東口 5階 -
津田沼オフィス
千葉県船橋市前原西2丁目14-2
津田沼駅前安田ビル別館 2階 -
秋葉原オフィス
東京都千代田区神田佐久間河岸55
朝風染常ビル 2階
グランドネクスト販売
株式会社東京都知事(1)第105105号
-
池袋オフィス
東京都豊島区池袋2丁目13番4号
天翔池袋西口ビル 5階
お問い合わせ先



















・「綾瀬」駅より徒歩9分の立地に建つ、総戸数80戸の地上12階建てマンションです。
・小学校や中学校、公園がお近くにございます。子育て中のご家庭にもおすすめの住環境です。
・周辺にはコンビニエンスストアやスーパー、ドラッグストアなどがあり買い物至便です。
・お部屋は11階部分の2LDK+SICタイプ。南西向きバルコニーにつき陽当たり通風良好です。
<販売価格について>
2025年12月23日での掲載開始した時点の価格は6,280万円です。