東大和市中央4丁目戸建て
新規登録日:2025年12月16日
最終更新日:2026年05月18日
-
- 価格
- 4,399万円5月18日 値下げ
-
- 所在地/交通
-
東京都東大和市中央4-1013-5
多摩都市モノレール線「上北台」駅より徒歩17分
-
- 間取り/建物面積
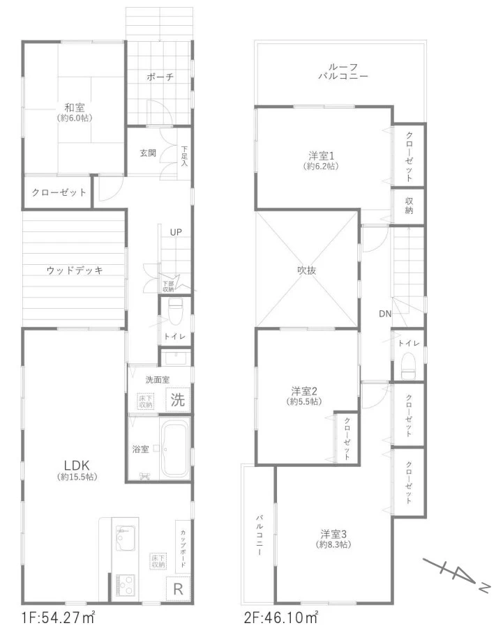
- 4LDK/100.37㎡
物件情報
- 所在地
-
東京都東大和市中央4-1013-5
地図・周辺情報
- アクセス
-
多摩都市モノレール線「上北台」駅より徒歩17分
西武拝島線「東大和市」駅より徒歩20分
- 間取り
- 4LDK
- 建物面積
- 100.37㎡
- 土地面積
- 156.77㎡
- 築年月
- 2014年07月
- 建物構造
- 木造 2階建て
- 接道状況
- 一方/約6.8m
- 駐車場
- -
- 接道方向/幅員
-
南西側/約5.1m
- 現況
- 空室
- 引渡時期
- 相談
- 用途地域等
- 第一種低層住居専用地域
- 建ぺい率/容積率
- 40%/80%
- 取引態様
- 媒介
- 土地権利
- 所有権
- 補足事項
- ・上水道
・下水道
・都市ガス
周辺地図
動画で解説
ローンシミュレーション
※金利は元利均等方式で計算しており、返済年数は5〜35年まで変更できます。
※ボーナスは年2回で計算しており、毎月の支払金額とは別で1回に増加する金額を300万円まで入力できます。
-
- 返済期間
-
年
-
- 金利
-
%
-
- ボーナス時の加算金額
-
万円
-
- 頭金
-
万円
-
- 借入金額
-
万円
-
- 毎月の返済金額
-
円/月
- 見学予約
- お問い合わせ
同じ沿線の物件
マンション名検索
- 掲載物件数
- 4327件
サービス・運営メディア
不動産の売却・購入を
ご検討中の方へ
年中無休
受付時間 9:30〜18:30
グランドネクスト株式会社国土交通大臣(2)第9883号
-
新宿オフィス
東京都新宿区新宿1丁目3-12
壱丁目参番館 3階 -
横浜オフィス
神奈川県横浜市中区桜木町2丁目2
港陽ビル 5階 -
大宮オフィス
埼玉県さいたま市大宮区宮町二丁目93-2
BIZcomfort大宮東口 5階 -
津田沼オフィス
千葉県船橋市前原西2丁目14-2
津田沼駅前安田ビル別館 2階 -
秋葉原オフィス
東京都千代田区神田佐久間河岸55
朝風染常ビル 2階
グランドネクスト販売
株式会社東京都知事(2)第105105号
-
池袋オフィス
東京都豊島区池袋2丁目13番4号
天翔池袋西口ビル 5階
お問い合わせ先



















・多摩モノレール「上北台」駅徒歩17分。2駅2路線利用可能な好立地に建つ、木造2階建て住宅です。
・近隣にはスーパーやコンビニ、ドラッグストアなどが点在。生活に役立つ店舗が揃っています。
・2台並列可能な駐車場付き。ウッドデッキもありガーデニング等も楽しめるゆとりある間取りです。
<主なリノベーション内容>(令和7年12月20日完成予定)
洗面台/トイレ/クロス張替/その他
<販売価格について>
2025年12月16日での掲載開始した時点の価格は4,690万円です。