神宮前プリンスハイツ 202号室
-
- 価格
- 1億2,990万円2月24日 値下げ
-
- 所在地/交通
-
東京都渋谷区神宮前3-1-12
東京メトロ銀座線「外苑前」駅より徒歩7分
-
- 間取り/専有面積
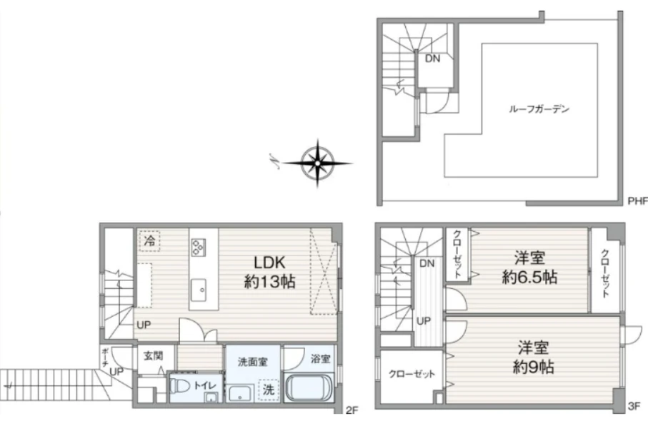
- 2LDK+2WIC/63.72㎡
物件情報
- 所在地
-
東京都渋谷区神宮前3-1-12
地図・周辺情報
- アクセス
-
東京メトロ銀座線「外苑前」駅より徒歩7分
東京メトロ千代田線「表参道」駅より徒歩7分
JR山手線「原宿」駅より徒歩14分
- 間取り
- 2LDK+2WIC
- 専有面積
- 63.72㎡
- バルコニー面積
- 7.79㎡
- 向き
- 南東
- 築年月
- 1984年03月
- 所在階数
- 2階 地上4階
- 建物構造
- 鉄筋コンクリート造
- 総戸数
- 12戸
- 施工会社
- 株式会社竹中工務店
- 管理会社
- 王子不動産株式会社
- 管理費
- 19,980 円/月
- 管理人状況
- 巡回
- 管理形態
- 管理会社に全部委託
- 修繕積立金
- 14,130 円/月
- 現況
- 空室
- 引渡時期
- 相談
- 取引態様
- 媒介
- 駐車場
- 無
- 土地権利
- 所有権
- ペットの飼育
- ペット不可
- 補足事項
- ・駐輪場:1台目無料、2台目以降月額500円
※駐輪場空要確認
・固都税額:年額188,591円(令和7年度)
周辺地図
動画で解説
ローンシミュレーション
※金利は元利均等方式で計算しており、返済年数は5〜35年まで変更できます。
※ボーナスは年2回で計算しており、毎月の支払金額とは別で1回に増加する金額を300万円まで入力できます。
-
- 返済期間
-
年
-
- 金利
-
%
-
- ボーナス時の加算金額
-
万円
-
- 頭金
-
万円
-
- 借入金額
-
万円
-
- 毎月の返済金額
-
円/月
この物件を見た人は
こんな物件も見ています
- 見学予約
- お問い合わせ
同じ地域の物件
同じ沿線の物件
マンション名検索
- 掲載物件数
- 4260件
同じ地域の物件
-
- マンション
- 新価格3月2日
パーク・ノヴァ神宮前 3階
7,480万円
東京メトロ千代田線「明治神宮前」駅より徒歩8分
ワンルーム 41.23㎡ 1986年06月 3階 地上8階 北西
-
- マンション
- 新価格2月10日
パークコート神宮前 204号室
6,099万円
JR山手線「原宿」駅より徒歩6分
1LDK 37.55㎡ 2009年01月 2階 地上16階/地下3階 北東
-
- マンション
- 新価格1月17日
D’クラディア神宮外苑ハイヴァリー 501号室
2億5,900万円
東京メトロ銀座線「外苑前」駅より徒歩9分
3LDK 75.85㎡ 2002年12月 5階 地上5階/地下1階 北東
-
- マンション
- 新価格1月13日
グランスイート神宮前 10階
1億2,800万円
東京メトロ副都心線「北参道」駅より徒歩7分
1LDK 46.53㎡ 2005年02月 10階 地上12階 南東
-
- マンション
- 新価格12月16日
BAOS神宮前 2~3階
1億9,800万円
東京メトロ銀座線「外苑前」駅より徒歩9分
2LDK+WIC+ルーフバルコニー 80.69㎡ 2013年03月 2~3 地上3階/地下1階 南
サービス・運営メディア
不動産の売却・購入を
ご検討中の方へ
年中無休
受付時間 9:30〜18:30
グランドネクスト株式会社国土交通大臣(1)第9883号
-
新宿オフィス
東京都新宿区新宿1丁目3-12
壱丁目参番館 3階 -
横浜オフィス
神奈川県横浜市中区桜木町2丁目2
港陽ビル 5階 -
大宮オフィス
埼玉県さいたま市大宮区宮町二丁目93-2
BIZcomfort大宮東口 5階 -
津田沼オフィス
千葉県船橋市前原西2丁目14-2
津田沼駅前安田ビル別館 2階 -
秋葉原オフィス
東京都千代田区神田佐久間河岸55
朝風染常ビル 2階
グランドネクスト販売
株式会社東京都知事(1)第105105号
-
池袋オフィス
東京都豊島区池袋2丁目13番4号
天翔池袋西口ビル 5階
お問い合わせ先



















・銀座線「外苑前」駅や「表参道」駅より徒歩7分の立地に建つ、4階建てマンションです。
・山手線「原宿」駅まで徒歩14分。3駅4路線利用可能でアクセス良好、通勤通学にも便利です。
・周辺にはコンビニエンスストアやスーパー、ドラッグストアなどがあり買い物至便です。
・お忙しい家庭に好評な宅配ボックスがあるので、不在時のお荷物のお受け取りも可能です。
・お部屋は2階部分の2LDKタイプ。WICを2部屋に完備、雨の日に便利な浴室乾燥機付きです。
<主なリノベーション内容>(令和7年11月施工完了)
システムキッチン/ユニットバス/洗面台/トイレ/クロス張替/床張替/建具/給湯器/その他
<販売価格について>
2025年12月5日での掲載開始した時点の価格は1億4,490万円です。