グランドメルシー駒沢 2階
-
- 価格
- 1億3,000万円4月20日 値下げ
-
- 所在地/交通
-
東京都世田谷区野沢4-13-18
東急田園都市線「駒沢大学」駅より徒歩8分
-
- 間取り/専有面積
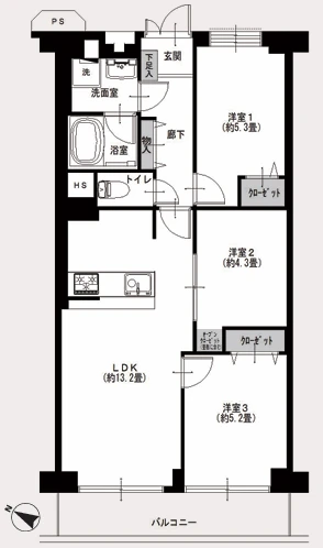
- 2LDK+N/90.54㎡
物件情報
- 所在地
-
東京都世田谷区野沢4-13-18
地図・周辺情報
- アクセス
-
東急田園都市線「駒沢大学」駅より徒歩8分
- 間取り
- 2LDK+N
- 専有面積
- 90.54㎡
- バルコニー面積
- 7.30㎡
- 向き
- 南西
- 築年月
- 1988年11月
- 所在階数
- 2階 地上3階
- 建物構造
- 鉄筋コンクリート造
- 総戸数
- 4戸
- 施工会社
- 不明
- 管理会社
- 日本マンション管理株式会社
- 管理費
- 27,380 円/月
- 管理人状況
- -
- 管理形態
- 管理会社に全部委託
- 修繕積立金
- 18,100 円/月
- 現況
- 空室
- 引渡時期
- 相談
- 取引態様
- 媒介
- 駐車場
- 有 12,500円~15,500円
- 土地権利
- 所有権
- ペットの飼育
- ペット相談
- 補足事項
- ・駐輪場:有(無償)
周辺地図
動画で解説
ローンシミュレーション
※金利は元利均等方式で計算しており、返済年数は5〜35年まで変更できます。
※ボーナスは年2回で計算しており、毎月の支払金額とは別で1回に増加する金額を300万円まで入力できます。
-
- 返済期間
-
年
-
- 金利
-
%
-
- ボーナス時の加算金額
-
万円
-
- 頭金
-
万円
-
- 借入金額
-
万円
-
- 毎月の返済金額
-
円/月
この物件を見た人は
こんな物件も見ています
- 見学予約
- お問い合わせ
同じ地域の物件
同じ沿線の物件
マンション名検索
- 掲載物件数
- 4103件
同じ地域の物件
-
- マンション
- 新価格4月20日
柿の木坂パレス 1312号室
8,999万円
東急東横線「学芸大学」駅より徒歩12分
3LDK+WIC 84.02㎡ 1972年03月 13階 地上13階 南
-
- マンション
フォルスコート学芸大学 403号室
1億3,480万円
東急東横線「学芸大学」駅より徒歩12分
3LDK+TR 72.68㎡ 1999年08月 4階 地上7階 南西
-
- マンション
ローヤルハイツのざわ 204号室
5,280万円
東急田園都市線「駒沢大学」駅より徒歩7分
2LDK 52.51㎡ 1981年10月 2階 地上7階 南西
-
- マンション
- 新価格4月6日
日生野沢マンション 208号室
4,680万円
東急東横線「学芸大学」駅より徒歩15分
1LDK+WIC 52.65㎡ 1970年03月 2階 地上9階/地下1階 南東
-
- マンション
- 新価格4月6日
D'グランセ駒沢大学 311号室
1億1,998万円
東急田園都市線「駒沢大学」駅より徒歩15分
3LDK+WIC 77.19㎡ 2004年06月 3階 地上5階 東
サービス・運営メディア
不動産の売却・購入を
ご検討中の方へ
年中無休
受付時間 9:30〜18:30
グランドネクスト株式会社国土交通大臣(1)第9883号
-
新宿オフィス
東京都新宿区新宿1丁目3-12
壱丁目参番館 3階 -
横浜オフィス
神奈川県横浜市中区桜木町2丁目2
港陽ビル 5階 -
大宮オフィス
埼玉県さいたま市大宮区宮町二丁目93-2
BIZcomfort大宮東口 5階 -
津田沼オフィス
千葉県船橋市前原西2丁目14-2
津田沼駅前安田ビル別館 2階 -
秋葉原オフィス
東京都千代田区神田佐久間河岸55
朝風染常ビル 2階
グランドネクスト販売
株式会社東京都知事(1)第105105号
-
池袋オフィス
東京都豊島区池袋2丁目13番4号
天翔池袋西口ビル 5階
お問い合わせ先



















・東急田園都市線「駒沢大学」駅より徒歩8分に建つ地上3階建て低層マンションとなっております。
・周辺にはコンビニエンスストアやスーパーなどもあり毎日のお買い物に大変便利な住環境です。
・オートロックが完備されていますので、セキュリティ面でも安心してお住まいいただけます。
・お部屋は2階部分の2LDK+N。陽当たり通風良好で快適にお過ごしいただけます。
<販売価格について>
2026年4月17日での掲載開始した時点の価格は1億4,000万円です。