コージースクエア千葉 903号室
新規登録日:2025年12月04日
最終更新日:2025年12月04日
-
- 価格
- 3,680万円
-
- 所在地/交通
-
千葉県千葉市中央区神明町252-5
JR内房線「本千葉」駅より徒歩6分
-
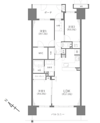
- 間取り/専有面積
- 3LDK+WIC/71.75㎡
物件情報
- 所在地
-
千葉県千葉市中央区神明町252-5
地図・周辺情報
- アクセス
-
JR内房線「本千葉」駅より徒歩6分
京成千原線「千葉中央」駅より徒歩7分
千葉都市モノレール「県庁前」駅より徒歩8分
- 間取り
- 3LDK+WIC
- 専有面積
- 71.75㎡
- バルコニー面積
- 12.20㎡
- 向き
- 南東
- 築年月
- 2004年02月
- 所在階数
- 9階 地上11階
- 建物構造
- 鉄筋コンクリート造
- 総戸数
- 122戸
- 施工会社
- -
- 管理会社
- 株式会社長谷工コミュニティ
- 管理費
- 9,800 円/月
- 管理人状況
- 日勤
- 管理形態
- 管理会社に全部委託
- 修繕積立金
- 17,080 円/月
- 現況
- 空室
- 引渡時期
- 予定(2026年1月中旬)
- 取引態様
- 媒介
- 駐車場
- 空有 5,000円~14,000円
- 土地権利
- 所有権
- ペットの飼育
- ペット可 ・ ペット相談
- 補足事項
- ・駐輪場:無償(空有)
・バイク置き場:月額400 ~ 800 円(空有)
・長期修繕計画書有
・CATV使用料:月額275円
・自治会費:月額300円
・令和7年度固定資産税額:年間116,339 円
周辺地図
動画で解説
ローンシミュレーション
※金利は元利均等方式で計算しており、返済年数は5〜35年まで変更できます。
※ボーナスは年2回で計算しており、毎月の支払金額とは別で1回に増加する金額を300万円まで入力できます。
-
- 返済期間
-
年
-
- 金利
-
%
-
- ボーナス時の加算金額
-
万円
-
- 頭金
-
万円
-
- 借入金額
-
万円
-
- 毎月の返済金額
-
円/月
この物件を見た人は
こんな物件も見ています
- 見学予約
- お問い合わせ
同じ地域の物件
同じ沿線の物件
マンション名検索
- 掲載物件数
- 4610件
サービス・運営メディア
不動産の売却・購入を
ご検討中の方へ
年中無休
受付時間 9:30〜18:30
グランドネクスト株式会社国土交通大臣(1)第9883号
-
新宿オフィス
東京都新宿区新宿1丁目3-12
壱丁目参番館 3階 -
横浜オフィス
神奈川県横浜市中区桜木町2丁目2
港陽ビル 5階 -
大宮オフィス
埼玉県さいたま市大宮区宮町二丁目93-2
BIZcomfort大宮東口 5階 -
津田沼オフィス
千葉県船橋市前原西2丁目14-2
津田沼駅前安田ビル別館 2階 -
秋葉原オフィス
東京都千代田区神田佐久間河岸55
朝風染常ビル 2階
グランドネクスト販売
株式会社東京都知事(1)第105105号
-
池袋オフィス
東京都豊島区池袋2丁目13番4号
天翔池袋西口ビル 5階
お問い合わせ先



















・「千葉中央」駅より徒歩7分。3駅複数路線利用可能で通勤通学に便利です。
・大切なペットと一緒に暮らすことができます。これから飼育をお考えの方にもおすすめです。
・オートロックが完備されていますので、セキュリティ面でも安心してお住まいいただけます。
・お部屋は9階部分の3LDK+WIC。収納豊富で、家族との会話が弾む人気の対面式キッチンです。
<主なリノベーション内容>(令和7年12月30日完成予定)
ユニットバス/トイレ/クロス張替/床張替/給湯器/その他
<販売価格について>
2025年12月4日での掲載開始した時点の価格は3,680万円です。