茅ヶ崎ガーデンハウス16 308号室
-
- 価格
- 3,980万円1月18日 値下げ
-
- 所在地/交通
-
神奈川県茅ヶ崎市東海岸南6-6-74
JR東海道線「茅ヶ崎」駅より徒歩25分
-
- 間取り/専有面積
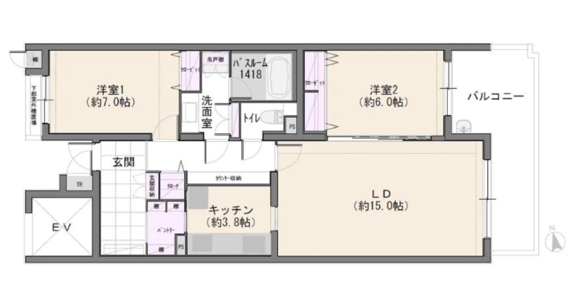
- 3LDK/97.09㎡
物件情報
- 所在地
-
神奈川県茅ヶ崎市東海岸南6-6-74
地図・周辺情報
- アクセス
-
JR東海道線「茅ヶ崎」駅より徒歩25分
JR相模線「茅ヶ崎」駅より徒歩25分
JR東海道線「茅ヶ崎」駅よりバスで7分
- 間取り
- 3LDK
- 専有面積
- 97.09㎡
- バルコニー面積
- -
- 向き
- 南西
- 築年月
- 1974年06月
- 所在階数
- 2階 地上2階
- 建物構造
- 鉄筋コンクリート造
- 総戸数
- 16戸
- 施工会社
- 大成建設株式会社
- 管理会社
- 大成有楽不動産株式会社
- 管理費
- 13,645 円/月
- 管理人状況
- 巡回
- 管理形態
- 管理会社に全部委託
- 修繕積立金
- 14,885 円/月
- 現況
- 空室
- 引渡時期
- 相談
- 取引態様
- 媒介
- 駐車場
- 空有 無料
- 土地権利
- 所有権
- ペットの飼育
- ペット可
- 補足事項
- ・駐車場:1台専用使用権あり(平置き)
・水道料金:月額2,917円
※登記簿謄本上は2階建ての物件となりますが、
住宅部分下層に駐車場があり、実質所在階は3階となります。
・専用物置スペース有(1階部分)
・バルコニー面積:不明
周辺地図
動画で解説
ローンシミュレーション
※金利は元利均等方式で計算しており、返済年数は5〜35年まで変更できます。
※ボーナスは年2回で計算しており、毎月の支払金額とは別で1回に増加する金額を300万円まで入力できます。
-
- 返済期間
-
年
-
- 金利
-
%
-
- ボーナス時の加算金額
-
万円
-
- 頭金
-
万円
-
- 借入金額
-
万円
-
- 毎月の返済金額
-
円/月
この物件を見た人は
こんな物件も見ています
- 見学予約
- お問い合わせ
同じ地域の物件
同じ沿線の物件
マンション名検索
- 掲載物件数
- 4705件
同じ地域の物件
-
- マンション
- 新価格1月11日
ヴェレーナグラン茅ヶ崎東海岸 1階
5,680万円
JR東海道線「茅ヶ崎」駅より徒歩15分
3LDK+2WIC+プライベートテラス 68.57㎡ 2023年02月 1階 地上4階/地下1階 南
-
- マンション
- 新価格12月14日
ウェリス茅ヶ崎東海岸南 1階
4,180万円
JR湘南新宿ライン高崎線「茅ヶ崎」駅より徒歩16分
2LDK+WIC 62.72㎡ 2012年05月 1階 地上5階 東
-
- マンション
- 新価格12月11日
パシフィックガーデン茅ヶ崎 A棟102号室
5,490万円
JR東海道線「茅ヶ崎」駅よりバスで7分
2LDK+パントリー 78.71㎡ 1999年02月 1階 地上3階 東
-
- マンション
NisshinGrandpalace茅ヶ崎東海岸 2階
5,580万円
JR東海道線「茅ヶ崎」駅より徒歩16分
2LDK+2WIC 60.25㎡ 2023年02月 2階 地上3階 南東
サービス・運営メディア
不動産の売却・購入を
ご検討中の方へ
年中無休
受付時間 9:30〜18:30
グランドネクスト株式会社国土交通大臣(1)第9883号
-
新宿オフィス
東京都新宿区新宿1丁目3-12
壱丁目参番館 3階 -
横浜オフィス
神奈川県横浜市中区桜木町2丁目2
港陽ビル 5階 -
大宮オフィス
埼玉県さいたま市大宮区宮町二丁目93-2
BIZcomfort大宮東口 5階 -
津田沼オフィス
千葉県船橋市前原西2丁目14-2
津田沼駅前安田ビル別館 2階 -
秋葉原オフィス
東京都千代田区神田佐久間河岸55
朝風染常ビル 2階
グランドネクスト販売
株式会社東京都知事(1)第105105号
-
池袋オフィス
東京都豊島区池袋2丁目13番4号
天翔池袋西口ビル 5階
お問い合わせ先



















・「茅ヶ崎」駅よりバス乗車7分、バス停下車徒歩6分の立地に建つ、2階建ての低層マンションです。
・小学校や中学校、公園がお近くにございます。子育て中のご家庭にもおすすめの住環境です。
・大切なペットと一緒に暮らすことができます。これから飼育をお考えの方にもおすすめです。
・最上階2階部分の3LDKタイプ。リビングは広々21.7帖、南西向きバルコニーのお部屋です。
<主なリノベーション内容>(令和7年9月末施工完了)
システムキッチン/ユニットバス/洗面台/トイレ/クロス張替/床張替/建具
<販売価格について>
2025年12月3日での掲載開始した時点の価格は4,180万円です。