ハイツ三鷹 103号室
新規登録日:2025年12月02日
最終更新日:2025年12月22日
-
- 価格
- 1,380万円12月22日 値下げ
-
- 所在地/交通
-
東京都三鷹市上連雀8-2-7
JR中央線「三鷹」駅よりバスで6分
-
- 間取り/専有面積
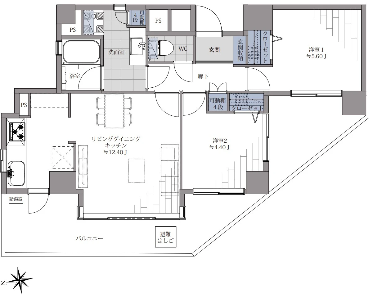
- 2DK+専用庭/43.74㎡
物件情報
- 所在地
-
東京都三鷹市上連雀8-2-7
地図・周辺情報
- アクセス
-
JR中央線「三鷹」駅よりバスで6分
JR総武中央線「三鷹」駅よりバスで6分
- 間取り
- 2DK+専用庭
- 専有面積
- 43.74㎡
- バルコニー面積
- 4.40㎡
- 向き
- 東
- 築年月
- 1972年05月
- 所在階数
- 1階 地上3階
- 建物構造
- 鉄筋コンクリート造
- 総戸数
- 18戸
- 施工会社
- 小俣建設株式会社
- 管理会社
- 東京クリアランス工業株式会社
- 管理費
- 8,000 円/月
- 管理人状況
- -
- 管理形態
- 管理会社に全部委託
- 修繕積立金
- 7,000 円/月
- 現況
- 賃貸中
- 引渡時期
- 即時
- 取引態様
- 媒介
- 駐車場
- 無
- 土地権利
- 所有権
- ペットの飼育
- ペット不可
- 補足事項
- ・エレベーター:なし
・令和3年10月~令和4年6月大規模修繕工事実施済み
・専用庭面積:23.22㎡
※オーナーチェンジ物件
周辺地図
動画で解説
ローンシミュレーション
※金利は元利均等方式で計算しており、返済年数は5〜35年まで変更できます。
※ボーナスは年2回で計算しており、毎月の支払金額とは別で1回に増加する金額を300万円まで入力できます。
-
- 返済期間
-
年
-
- 金利
-
%
-
- ボーナス時の加算金額
-
万円
-
- 頭金
-
万円
-
- 借入金額
-
万円
-
- 毎月の返済金額
-
円/月
この物件を見た人は
こんな物件も見ています
- 見学予約
- お問い合わせ
同じ地域の物件
同じ沿線の物件
マンション名検索
- 掲載物件数
- 4705件
サービス・運営メディア
不動産の売却・購入を
ご検討中の方へ
年中無休
受付時間 9:30〜18:30
グランドネクスト株式会社国土交通大臣(1)第9883号
-
新宿オフィス
東京都新宿区新宿1丁目3-12
壱丁目参番館 3階 -
横浜オフィス
神奈川県横浜市中区桜木町2丁目2
港陽ビル 5階 -
大宮オフィス
埼玉県さいたま市大宮区宮町二丁目93-2
BIZcomfort大宮東口 5階 -
津田沼オフィス
千葉県船橋市前原西2丁目14-2
津田沼駅前安田ビル別館 2階 -
秋葉原オフィス
東京都千代田区神田佐久間河岸55
朝風染常ビル 2階
グランドネクスト販売
株式会社東京都知事(1)第105105号
-
池袋オフィス
東京都豊島区池袋2丁目13番4号
天翔池袋西口ビル 5階
お問い合わせ先



















・「三鷹」駅までバス便で6分。複数路線利用可能で各方面にアクセス至便となっております。
・1972年5月築。閑静な住宅地に建つ総戸数18戸の地上3階建て低層マンションとなっております。
・周辺にはスーパーやコンビニエンスストアなどもあり毎日のお買い物に大変便利な住環境です。
・お部屋は1階部分の2DK。クローゼット付ですっきり快適なお部屋でお過ごしいただけます。
・広々な専用庭もございます。陽当たり通風良好なダイニングキッチンとなっております。
※オーナーチェンジ物件
<主なリノベーション内容>(令和6年2月施工完了)
システムキッチン/ユニットバス/洗面台/トイレ/クロス張替/床張替/建具/給湯器/その他
<販売価格について>
2025年12月2日での掲載開始した時点の価格は1,980万円です。