あざみ野団地 第3‐3‐6号棟103号室
新規登録日:2025年12月02日
最終更新日:2025年12月27日
-
- 価格
- 5,080万円12月27日 値下げ
-
- 所在地/交通
-
神奈川県横浜市青葉区あざみ野3‐3‐6
東急田園都市線「あざみ野」駅より徒歩18分
-
- 間取り/専有面積
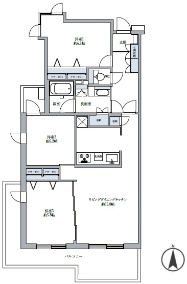
- 3LDK+WIC/97.46㎡
物件情報
- 所在地
-
神奈川県横浜市青葉区あざみ野3‐3‐6
地図・周辺情報
- アクセス
-
東急田園都市線「あざみ野」駅より徒歩18分
横浜市営地下鉄ブルーライン「あざみ野」駅より徒歩18分
- 間取り
- 3LDK+WIC
- 専有面積
- 97.46㎡
- バルコニー面積
- 8.10㎡
- 向き
- 南西
- 築年月
- 1982年08月
- 所在階数
- 1階 地上5階
- 建物構造
- 鉄筋コンクリート造
- 総戸数
- 1000戸
- 施工会社
- -
- 管理会社
- 日本総合住生活株式会社
- 管理費
- 6,400 円/月
- 管理人状況
- 日勤
- 管理形態
- 管理会社に一部委託
- 修繕積立金
- 13,100 円/月
- 現況
- 未完成
- 引渡時期
- 予定(2026年1月下旬)
- 取引態様
- 媒介
- 駐車場
- 有 7,000円
- 土地権利
- 所有権
- ペットの飼育
- ペット要確認
- 補足事項
- ・自転車置き場:有
・バイク置き場:有
・専用庭面積:46㎡
・4LDKに変更可能※詳しくは担当者まで。
周辺地図
動画で解説
ローンシミュレーション
※金利は元利均等方式で計算しており、返済年数は5〜35年まで変更できます。
※ボーナスは年2回で計算しており、毎月の支払金額とは別で1回に増加する金額を300万円まで入力できます。
-
- 返済期間
-
年
-
- 金利
-
%
-
- ボーナス時の加算金額
-
万円
-
- 頭金
-
万円
-
- 借入金額
-
万円
-
- 毎月の返済金額
-
円/月
この物件を見た人は
こんな物件も見ています
- 見学予約
- お問い合わせ
同じ地域の物件
同じ沿線の物件
マンション名検索
- 掲載物件数
- 4704件
サービス・運営メディア
不動産の売却・購入を
ご検討中の方へ
年中無休
受付時間 9:30〜18:30
グランドネクスト株式会社国土交通大臣(1)第9883号
-
新宿オフィス
東京都新宿区新宿1丁目3-12
壱丁目参番館 3階 -
横浜オフィス
神奈川県横浜市中区桜木町2丁目2
港陽ビル 5階 -
大宮オフィス
埼玉県さいたま市大宮区宮町二丁目93-2
BIZcomfort大宮東口 5階 -
津田沼オフィス
千葉県船橋市前原西2丁目14-2
津田沼駅前安田ビル別館 2階 -
秋葉原オフィス
東京都千代田区神田佐久間河岸55
朝風染常ビル 2階
グランドネクスト販売
株式会社東京都知事(1)第105105号
-
池袋オフィス
東京都豊島区池袋2丁目13番4号
天翔池袋西口ビル 5階
お問い合わせ先



















・「あざみ野」駅より徒歩18分。人気の田園都市線沿線で、各方面にアクセス至便となっております。
・緑の多い閑静な住宅街に位置しています、落ち着いた暮らしをお求めの方にもおすすめです。
・複数棟からなる大規模団地です。公園やスポーツ施設なども近くにあり、住環境良好です。
・周辺はスーパーやコンビニ、複合商業施設がございます。毎日のお買い物にもとても便利です。
・お部屋は1階部分の3LDK。WIC付。収納豊富ですっきり快適なお部屋でお過ごしいただけます。
・広々なLDKで新規リノベーションの角部屋。専用庭付。陽当たり通風良好で快適となっております。
<主なリノベーション内容>(令和8年1月末完成予定)
システムキッチン/ユニットバス/洗面台/トイレ/クロス張替/建具/その他
<販売価格について>
2025年12月2日での掲載開始した時点の価格は5,180万円です。
【同マンション 3-3-4号棟501号室 3LDK+WIC】も販売中です。詳しくはこちらをクリック!
【同マンション 第3-1-1号棟303号室 3LDK+WIC】も販売中です。詳しくはこちらをクリック!