落合南長崎パークハウス 403号室
-
- 価格
- 9,980万円2月20日 値下げ
-
- 所在地/交通
-
東京都豊島区南長崎4-29-16
都営地下鉄大江戸線「落合南長崎」駅より徒歩5分
-
- 間取り/専有面積
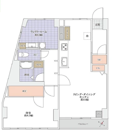
- 3LDK+マルチWIC/79.11㎡
物件情報
- 所在地
-
東京都豊島区南長崎4-29-16
地図・周辺情報
- アクセス
-
都営地下鉄大江戸線「落合南長崎」駅より徒歩5分
西武池袋線「東長崎」駅より徒歩9分
- 間取り
- 3LDK+マルチWIC
- 専有面積
- 79.11㎡
- バルコニー面積
- 5.13㎡
- 向き
- 南西
- 築年月
- 1998年07月
- 所在階数
- 4階 地上5階
- 建物構造
- 鉄筋コンクリート造
- 総戸数
- 22戸
- 施工会社
- -
- 管理会社
- 三菱地所コミュニティ株式会社
- 管理費
- 17,400 円/月
- 管理人状況
- 巡回
- 管理形態
- 管理会社に全部委託
- 修繕積立金
- 18,200 円/月
- 現況
- 空室
- 引渡時期
- 即時
- 取引態様
- 媒介
- 駐車場
- 空無 24,000円~31,000円
- 土地権利
- 所有権
- ペットの飼育
- ペット可
- 補足事項
- ・CATV使用料:月額660円
周辺地図
動画で解説
ローンシミュレーション
※金利は元利均等方式で計算しており、返済年数は5〜35年まで変更できます。
※ボーナスは年2回で計算しており、毎月の支払金額とは別で1回に増加する金額を300万円まで入力できます。
-
- 返済期間
-
年
-
- 金利
-
%
-
- ボーナス時の加算金額
-
万円
-
- 頭金
-
万円
-
- 借入金額
-
万円
-
- 毎月の返済金額
-
円/月
この物件を見た人は
こんな物件も見ています
- 見学予約
- お問い合わせ
同じ地域の物件
同じ沿線の物件
マンション名検索
- 掲載物件数
- 4260件
同じ地域の物件
-
- マンション
中銀南長崎マンシオン 504号室
3,680万円
西武池袋線「椎名町」駅より徒歩8分
2LDK 47.52㎡ 1971年11月 5階 地上11階/地下1階 南
-
- マンション
マイキャッスル東長崎 403号室
7,680万円
西武池袋線「東長崎」駅より徒歩4分
2SLDK+WIC 60.40㎡ 1997年07月 4階 地上6階 南西
-
- マンション
アビタシオン南長崎 5階
4,580万円
西武池袋線「東長崎」駅より徒歩9分
2DK 50.75㎡ 1994年04月 5階 地上6階 北東
-
- マンション
ユアコート東長崎 305号室
9,480万円
西武池袋線「東長崎」駅より徒歩2分
3LDK+WIC 76.12㎡ 2000年02月 3階 地上6階 南西
-
- マンション
カクエイ・ハイホーム 3階
4,180万円
西武池袋線「東長崎」駅より徒歩4分
3DK 59.14㎡ 1967年07月 3階 地上9階/地下2階 南東
サービス・運営メディア
不動産の売却・購入を
ご検討中の方へ
年中無休
受付時間 9:30〜18:30
グランドネクスト株式会社国土交通大臣(1)第9883号
-
新宿オフィス
東京都新宿区新宿1丁目3-12
壱丁目参番館 3階 -
横浜オフィス
神奈川県横浜市中区桜木町2丁目2
港陽ビル 5階 -
大宮オフィス
埼玉県さいたま市大宮区宮町二丁目93-2
BIZcomfort大宮東口 5階 -
津田沼オフィス
千葉県船橋市前原西2丁目14-2
津田沼駅前安田ビル別館 2階 -
秋葉原オフィス
東京都千代田区神田佐久間河岸55
朝風染常ビル 2階
グランドネクスト販売
株式会社東京都知事(1)第105105号
-
池袋オフィス
東京都豊島区池袋2丁目13番4号
天翔池袋西口ビル 5階
お問い合わせ先



















・大切なペットと一緒に暮らすことができます。これから飼育をお考えの方にもおすすめです。
・セキュリティ面に配慮してオートロックを完備しているので、安心してお住まいいただけます。
・宅配ボックスが備え付けられているため急なお出かけの際にも荷物を受け取ることができます。