ピアース四谷 1201号室
-
- 価格
- 1億5,200万円11月30日 値下げ
-
- 所在地/交通
-
東京都新宿区富久町8-1
都営地下鉄新宿線「曙橋」駅より徒歩4分
-
- 間取り/専有面積
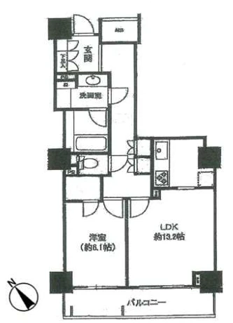
- 2LDK+WIC/72.23㎡
物件情報
- 所在地
-
東京都新宿区富久町8-1
地図・周辺情報
- アクセス
-
都営地下鉄新宿線「曙橋」駅より徒歩4分
東京メトロ丸ノ内線「四谷三丁目」駅より徒歩6分
- 間取り
- 2LDK+WIC
- 専有面積
- 72.23㎡
- バルコニー面積
- 8.09㎡
- 向き
- 東
- 築年月
- 2004年10月
- 所在階数
- 12階 地上13階
- 建物構造
- 鉄骨鉄筋コンクリート造
- 総戸数
- 33戸
- 施工会社
- -
- 管理会社
- 株式会社盛本クオリティ
- 管理費
- 21,500 円/月
- 管理人状況
- 日勤
- 管理形態
- 管理会社に全部委託
- 修繕積立金
- 34,020 円/月
- 現況
- 空室
- 引渡時期
- 即時
- 取引態様
- 媒介
- 駐車場
- 要確認 35,000円
- 土地権利
- 所有権
- ペットの飼育
- ペット可
- 補足事項
- ・駐輪場:月額300円※空要確認
周辺地図
担当者コメント
- ▼【ピアース四谷】は…・都営新宿線「曙橋」駅より徒歩4分。2駅複数路線利用可能で通勤通学に大変便利な好立地です。・ペット飼育可能。既に飼育されている方はもちろん、これから飼育を検討される方にもお勧めです。・周辺にはコンビニエンスストアやスーパーがございます。毎日のお買い物にも大変便利です。
動画で解説
ローンシミュレーション
※金利は元利均等方式で計算しており、返済年数は5〜35年まで変更できます。
※ボーナスは年2回で計算しており、毎月の支払金額とは別で1回に増加する金額を300万円まで入力できます。
-
- 返済期間
-
年
-
- 金利
-
%
-
- ボーナス時の加算金額
-
万円
-
- 頭金
-
万円
-
- 借入金額
-
万円
-
- 毎月の返済金額
-
円/月
この物件を見た人は
こんな物件も見ています
- 見学予約
- お問い合わせ
同じ地域の物件
同じ沿線の物件
マンション名検索
- 掲載物件数
- 4610件
同じ地域の物件
-
- マンション
富久クロスコンフォートタワー 48階
2億5,400万円
東京メトロ丸ノ内線「新宿御苑前」駅より徒歩5分
3LDK+SIC+納戸 76.29㎡ 2015年04月 48階 地上55階/地下2階 東
-
- マンション
富久クロスコンフォートタワー 46階
2億2,980万円
東京メトロ丸ノ内線「新宿御苑前」駅より徒歩7分
2LDK 60.00㎡ 2015年06月 46階 地上55階 北
-
- マンション
ローレルコート新宿タワー 1606号室
1億1,480万円
東京メトロ丸ノ内線「新宿御苑前」駅より徒歩8分
1LDK 55.22㎡ 2002年09月 16階 地上32階/地下2階 南西
-
- マンション
富久クロスコンフォートタワー 53階
2億5,200万円
東京メトロ丸ノ内線「新宿御苑前」駅より徒歩5分
1SSLDK+納戸 60.00㎡ 2015年03月 53階 地上55階/地下2階 北東
サービス・運営メディア
不動産の売却・購入を
ご検討中の方へ
年中無休
受付時間 9:30〜18:30
グランドネクスト株式会社国土交通大臣(1)第9883号
-
新宿オフィス
東京都新宿区新宿1丁目3-12
壱丁目参番館 3階 -
横浜オフィス
神奈川県横浜市中区桜木町2丁目2
港陽ビル 5階 -
大宮オフィス
埼玉県さいたま市大宮区宮町二丁目93-2
BIZcomfort大宮東口 5階 -
津田沼オフィス
千葉県船橋市前原西2丁目14-2
津田沼駅前安田ビル別館 2階 -
秋葉原オフィス
東京都千代田区神田佐久間河岸55
朝風染常ビル 2階
グランドネクスト販売
株式会社東京都知事(1)第105105号
-
池袋オフィス
東京都豊島区池袋2丁目13番4号
天翔池袋西口ビル 5階
お問い合わせ先


















