東海第一グリーンパークマンション 11階
新規登録日:2025年10月24日
最終更新日:2025年10月24日
-
- 価格
- 2,880万円
-
- 所在地/交通
-
東京都武蔵野市緑町1-5-1
JR中央線「三鷹」駅より徒歩18分
-
- 間取り/専有面積
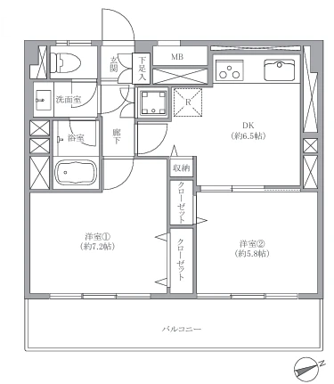
- 2DK/45.36㎡
物件情報
- 所在地
-
東京都武蔵野市緑町1-5-1
地図・周辺情報
- アクセス
-
JR中央線「三鷹」駅より徒歩18分
JR中央線「吉祥寺」駅よりバスで12分
- 間取り
- 2DK
- 専有面積
- 45.36㎡
- バルコニー面積
- 8.36㎡
- 向き
- 南東
- 築年月
- 1971年11月
- 所在階数
- 11階 地上11階
- 建物構造
- 鉄骨鉄筋コンクリート造
- 総戸数
- 53戸
- 施工会社
- -
- 管理会社
- 日本ハウズイング株式会社
- 管理費
- 11,400 円/月
- 管理人状況
- 日勤
- 管理形態
- 管理会社に全部委託
- 修繕積立金
- 8,450 円/月
- 現況
- 空室
- 引渡時期
- 即時
- 取引態様
- 媒介
- 駐車場
- 要確認
- 土地権利
- 所有権
- ペットの飼育
- ペット要確認
- 補足事項
周辺地図
担当者コメント
- ▼【東海第一グリーンパークマンション】は…・中央線「三鷹」駅より徒歩18分の立地に建つ、総戸数53戸の地上11階建てマンションです。・周辺にはコンビニやスーパー、ドラッグストア等があり毎日のお買い物にも便利な住環境です。
動画で解説
ローンシミュレーション
※金利は元利均等方式で計算しており、返済年数は5〜35年まで変更できます。
※ボーナスは年2回で計算しており、毎月の支払金額とは別で1回に増加する金額を300万円まで入力できます。
-
- 返済期間
-
年
-
- 金利
-
%
-
- ボーナス時の加算金額
-
万円
-
- 頭金
-
万円
-
- 借入金額
-
万円
-
- 毎月の返済金額
-
円/月
この物件を見た人は
こんな物件も見ています
- 見学予約
- お問い合わせ
同じ地域の物件
同じ沿線の物件
マンション名検索
- 掲載物件数
- 4705件
サービス・運営メディア
不動産の売却・購入を
ご検討中の方へ
年中無休
受付時間 9:30〜18:30
グランドネクスト株式会社国土交通大臣(1)第9883号
-
新宿オフィス
東京都新宿区新宿1丁目3-12
壱丁目参番館 3階 -
横浜オフィス
神奈川県横浜市中区桜木町2丁目2
港陽ビル 5階 -
大宮オフィス
埼玉県さいたま市大宮区宮町二丁目93-2
BIZcomfort大宮東口 5階 -
津田沼オフィス
千葉県船橋市前原西2丁目14-2
津田沼駅前安田ビル別館 2階 -
秋葉原オフィス
東京都千代田区神田佐久間河岸55
朝風染常ビル 2階
グランドネクスト販売
株式会社東京都知事(1)第105105号
-
池袋オフィス
東京都豊島区池袋2丁目13番4号
天翔池袋西口ビル 5階
お問い合わせ先


















