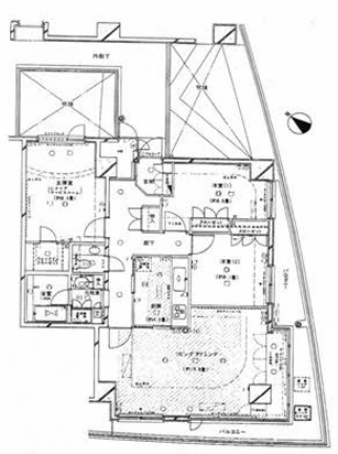
TokyoSeaSouthブランファーレ 3409号室
-
- 価格
- 1億7,850万円12月5日 値下げ
-
- 所在地/交通
-
東京都港区港南4-7-55
東京モノレール「天王洲アイル」駅より徒歩9分
-
- 間取り/専有面積
- 3LDK+WIC/87.52㎡
物件情報
- 所在地
-
東京都港区港南4-7-55
地図・周辺情報
- アクセス
-
東京モノレール「天王洲アイル」駅より徒歩9分
りんかい線「天王洲アイル」駅より徒歩12分
JR山手線「品川」駅より徒歩12分
- 間取り
- 3LDK+WIC
- 専有面積
- 87.52㎡
- バルコニー面積
- 6.57㎡
- 向き
- 西
- 築年月
- 2004年06月
- 所在階数
- 34階 地上36階/地下1階
- 建物構造
- 鉄筋コンクリート造
- 総戸数
- 373戸
- 施工会社
- 鹿島建設株式会社
- 管理会社
- 株式会社東急コミュニティー
- 管理費
- 18,700 円/月
- 管理人状況
- 日勤
- 管理形態
- 管理会社に全部委託
- 修繕積立金
- 28,620 円/月
- 現況
- 空室
- 引渡時期
- 即時
- 取引態様
- 媒介
- 駐車場
- 有 19,000円~40,000円
- 土地権利
- 所有権
- ペットの飼育
- ペット可
- 補足事項
- ・駐輪場あり:月額300円・バイク置場あり:月額2,000~4,000円・CATV使用料:月額:110円
周辺地図
担当者コメント
- ▼【TokyoSeaSouthブランファーレ】は…・「天王洲アイル」駅徒歩9分、「品川」駅から徒歩12分の好立地。制震構造のマンションです。・ゲストルームやシアタールームなど共用施設が充実しております。ペットと一緒に暮らせます。・留守がちな方のお荷物のお受け取りに大変便利な宅配ボックスが完備されております。・日勤管理につき管理体制も良好で、各階にダストステーションが設置されており便利です。
動画で解説
ローンシミュレーション
※金利は元利均等方式で計算しており、返済年数は5〜35年まで変更できます。
※ボーナスは年2回で計算しており、毎月の支払金額とは別で1回に増加する金額を300万円まで入力できます。
-
- 返済期間
-
年
-
- 金利
-
%
-
- ボーナス時の加算金額
-
万円
-
- 頭金
-
万円
-
- 借入金額
-
万円
-
- 毎月の返済金額
-
円/月
この物件を見た人は
こんな物件も見ています
- 見学予約
- お問い合わせ
同じ地域の物件
同じ沿線の物件
マンション名検索
- 掲載物件数
- 4610件
同じ地域の物件
-
- マンション
- 新価格11月30日
ワールドシティタワーズ アクアタワー13階
1億1,500万円
JR山手線「品川」駅より徒歩15分
2LDK+WIC+TR 56.79㎡ 2005年10月 13階 地上42階/地下2階 西
-
- マンション
- 新価格11月30日
グランシティ天王洲アイル 305号室
8,398万円
りんかい線「天王洲アイル」駅より徒歩9分
2LDK 53.91㎡ 1998年10月 3階 地上14階 南
-
- マンション
- 新価格11月30日
ベイクレストタワー 36階
1億4,200万円
りんかい線「天王洲アイル」駅より徒歩13分
2LDK+WIC 72.67㎡ 2005年08月 36階 地上40階/地下1階 南
-
- マンション
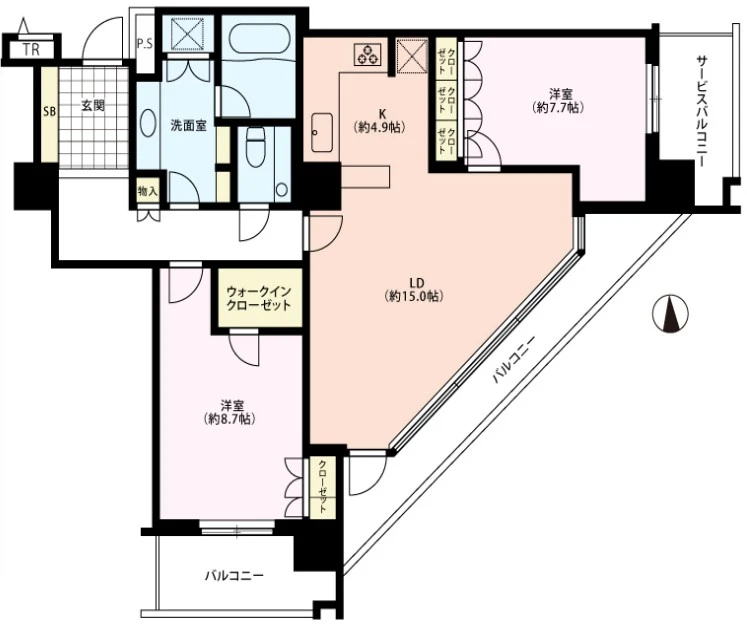
TokyoSeaSouthブランファーレ 2907号室
2億2,500万円
東京モノレール「天王洲アイル」駅より徒歩9分
2LDK+マルチWIC+WIC 98.43㎡ 2004年06月 29階 地上36階 南
-
- マンション
フェイバリッチタワー品川 15階
1億3,990万円
東京モノレール「天王洲アイル」駅より徒歩13分
2LDK+SIC+WIC 78.85㎡ 2006年10月 15階 地上31階/地下2階 南
サービス・運営メディア
不動産の売却・購入を
ご検討中の方へ
年中無休
受付時間 9:30〜18:30
グランドネクスト株式会社国土交通大臣(1)第9883号
-
新宿オフィス
東京都新宿区新宿1丁目3-12
壱丁目参番館 3階 -
横浜オフィス
神奈川県横浜市中区桜木町2丁目2
港陽ビル 5階 -
大宮オフィス
埼玉県さいたま市大宮区宮町二丁目93-2
BIZcomfort大宮東口 5階 -
津田沼オフィス
千葉県船橋市前原西2丁目14-2
津田沼駅前安田ビル別館 2階 -
秋葉原オフィス
東京都千代田区神田佐久間河岸55
朝風染常ビル 2階
グランドネクスト販売
株式会社東京都知事(1)第105105号
-
池袋オフィス
東京都豊島区池袋2丁目13番4号
天翔池袋西口ビル 5階
お問い合わせ先


















