ザ・パークハウス西新宿タワー60 4210号室
-
- 価格
- 2億2,500万円
-
- 所在地/交通
-
東京都新宿区西新宿5-5-1
都営地下鉄大江戸線「西新宿五丁目」駅より徒歩7分
-
- 間取り/専有面積
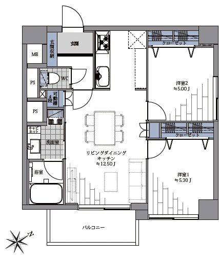
- 3LDK+WIC/83.37㎡
物件情報
- 所在地
-
東京都新宿区西新宿5-5-1
地図・周辺情報
- アクセス
-
都営地下鉄大江戸線「西新宿五丁目」駅より徒歩7分
東京メトロ丸ノ内線「西新宿」駅より徒歩10分
- 間取り
- 3LDK+WIC
- 専有面積
- 83.37㎡
- バルコニー面積
- 15.94㎡
- 向き
- 南西
- 築年月
- 2017年08月
- 所在階数
- 42階 地上60階/地下2階
- 建物構造
- 鉄骨造・ 鉄筋コンクリート造
- 総戸数
- 954戸
- 施工会社
- 株式会社フジタ
- 管理会社
- 三菱地所コミュニティ株式会社
- 管理費
- 25,060 円/月
- 管理人状況
- 日勤
- 管理形態
- 管理会社に全部委託
- 修繕積立金
- 15,010 円/月
- 現況
- 空室
- 引渡時期
- 相談
- 取引態様
- 媒介
- 駐車場
- 要確認
- 土地権利
- 所有権
- ペットの飼育
- ペット要確認
- 補足事項
- ・インターネット利用料:月額1,067円
・オール電化
・貯湯ユニット置場面積:0.90㎡(専有面積に含む)
周辺地図
動画で解説
ローンシミュレーション
※金利は元利均等方式で計算しており、返済年数は5〜35年まで変更できます。
※ボーナスは年2回で計算しており、毎月の支払金額とは別で1回に増加する金額を300万円まで入力できます。
-
- 返済期間
-
年
-
- 金利
-
%
-
- ボーナス時の加算金額
-
万円
-
- 頭金
-
万円
-
- 借入金額
-
万円
-
- 毎月の返済金額
-
円/月
この物件を見た人は
こんな物件も見ています
- 見学予約
- お問い合わせ
同じ地域の物件
同じ沿線の物件
マンション名検索
- 掲載物件数
- 4717件
同じ地域の物件
-
- マンション
- 新価格11月7日
ハイネスロフティー 705号室
4,699万円
都営地下鉄大江戸線「都庁前」駅より徒歩6分
1LDK 34.67㎡ 1979年02月 7階 地上13階 西
-
- マンション
シティタワー新宿 3210号室
1億8,800万円
東京メトロ丸ノ内線「西新宿」駅より徒歩7分
2LDK+WIC 55.98㎡ 2023年02月 32階 地上35階 北東
-
- マンション
ハイネスロフティー 501号室
5,490万円
都営地下鉄大江戸線「都庁前」駅より徒歩5分
1SLDK 45.12㎡ 1979年02月 5階 地上13階 東
-
- マンション
東建ニューハイツ西新宿 602号室
7,180万円
都営地下鉄大江戸線「西新宿五丁目」駅より徒歩3分
2LDK+2WIC 54.09㎡ 1981年01月 6階 地上12階 東
-
- マンション
- 新価格10月30日
西新宿ダイヤモンドパレス 1110号室
6,299万円
都営地下鉄大江戸線「都庁前」駅より徒歩7分
2LDK 49.28㎡ 1981年03月 11階 地上14階 南西
サービス・運営メディア
不動産の売却・購入を
ご検討中の方へ
年中無休
受付時間 9:30〜18:30
グランドネクスト株式会社国土交通大臣(1)第9883号
-
新宿オフィス
東京都新宿区新宿1丁目3-12
壱丁目参番館 3階 -
横浜オフィス
神奈川県横浜市中区桜木町2丁目2
港陽ビル 5階 -
大宮オフィス
埼玉県さいたま市大宮区宮町二丁目93-2
BIZcomfort大宮東口 5階 -
津田沼オフィス
千葉県船橋市前原西2丁目14-2
津田沼駅前安田ビル別館 2階 -
秋葉原オフィス
東京都千代田区神田佐久間河岸55
朝風染常ビル 2階
グランドネクスト販売
株式会社東京都知事(1)第105105号
-
池袋オフィス
東京都豊島区池袋2丁目13番4号
天翔池袋西口ビル 5階
お問い合わせ先



















・都営大江戸線「西新宿五丁目」駅徒歩7分。60階建の制震構造タワーマンションです。
・「西新宿」駅も徒歩圏内。複数路線利用可能で毎日の通勤通学に便利な好立地です。
・フィットネスジム、ビューラウンジ&バー、ゲストルームなど共用施設が充実しています。
・オートロック等のセキュリティー設備が充実しておりますので、安心してお住まいいただけます。
・お部屋は42階部分の3LDK+WIC。南西向きバルコニーにつき日当たり良好です。
<販売価格について>
2025年9月18日での掲載開始した時点の価格は2億2,500万円です。
【同マンション 4103号室 1LDK+WIC】も販売中です。詳しくはこちらをクリック!