港北ニュータウンビュープラザセンター北 3-1号棟305号室
-
- 価格
- 4,490万円11月19日 値下げ
-
- 所在地/交通
-
神奈川県横浜市都筑区南山田1-3-1
横浜市営地下鉄グリーンライン「北山田」駅より徒歩10分
-
- 間取り/専有面積
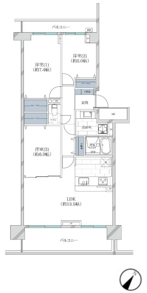
- 1SLDK/73.84㎡
物件情報
- 所在地
-
神奈川県横浜市都筑区南山田1-3-1
地図・周辺情報
- アクセス
-
横浜市営地下鉄グリーンライン「北山田」駅より徒歩10分
横浜市営地下鉄ブルーライン「センター北」駅より徒歩16分
横浜市営地下鉄グリーンライン「センター北」駅より徒歩14分
- 間取り
- 1SLDK
- 専有面積
- 73.84㎡
- バルコニー面積
- 4.80㎡
- 向き
- 南東
- 築年月
- 1993年08月
- 所在階数
- 3階 地上8階
- 建物構造
- 鉄筋コンクリート造
- 総戸数
- 41戸
- 施工会社
- 株式会社奥村組
- 管理会社
- 三菱地所コミュニティ株式会社
- 管理費
- 14,600 円/月
- 管理人状況
- 日勤
- 管理形態
- 管理会社に全部委託
- 修繕積立金
- 13,500 円/月
- 現況
- 空室
- 引渡時期
- 相談
- 取引態様
- 媒介
- 駐車場
- 空有 11,700円~16,000円
- 土地権利
- 所有権
- ペットの飼育
- ペット不可
- 補足事項
- ・駐輪場あり:空有(月額:無償)・バイク置場あり:空有(月額:800~1,500円/台)
周辺地図
担当者コメント
- ▼【港北ニュータウンビュープラザセンター北】は…・市営地下鉄グリーンライン「北山田」駅徒歩10分に建つ、複数棟からなるマンションです。・駅前には"モザイクモール港北"をはじめ商業施設が集積しており、生活至便な住環境です。・小学校や公園なども徒歩圏内に点在。学齢期のお子様がいらっしゃるご家庭にもおすすめです。
動画で解説
ローンシミュレーション
※金利は元利均等方式で計算しており、返済年数は5〜35年まで変更できます。
※ボーナスは年2回で計算しており、毎月の支払金額とは別で1回に増加する金額を300万円まで入力できます。
-
- 返済期間
-
年
-
- 金利
-
%
-
- ボーナス時の加算金額
-
万円
-
- 頭金
-
万円
-
- 借入金額
-
万円
-
- 毎月の返済金額
-
円/月
この物件を見た人は
こんな物件も見ています
- 見学予約
- お問い合わせ
同じ地域の物件
同じ沿線の物件
マンション名検索
- 掲載物件数
- 4610件
同じ地域の物件
-
- マンション
港北ニュータウンビュープラザセンター北 3-6号棟905号室
3,999万円
横浜市営地下鉄グリーンライン「北山田」駅より徒歩11分
2LDK 65.88㎡ 1999年12月 9階 地上13階 南東
-
- マンション
港北ニュータウンパークサイドハイツ 3番館3階
4,780万円
横浜市営地下鉄グリーンライン「北山田」駅より徒歩12分
2LDK+WIC 73.56㎡ 1995年12月 3階 地上8階 南西
-
- マンション
港北パークヒルズ 810号室
5,899万円
横浜市営地下鉄ブルーライン「センター北」駅より徒歩14分
3LDK 77.58㎡ 1996年07月 8階 地上14階 南東
-
- マンション
港北パークヒルズ 壱番館1009号室
5,990万円
横浜市営地下鉄ブルーライン「センター北」駅より徒歩14分
3LDK 77.58㎡ 1996年07月 10階 地上14階 南東
サービス・運営メディア
不動産の売却・購入を
ご検討中の方へ
年中無休
受付時間 9:30〜18:30
グランドネクスト株式会社国土交通大臣(1)第9883号
-
新宿オフィス
東京都新宿区新宿1丁目3-12
壱丁目参番館 3階 -
横浜オフィス
神奈川県横浜市中区桜木町2丁目2
港陽ビル 5階 -
大宮オフィス
埼玉県さいたま市大宮区宮町二丁目93-2
BIZcomfort大宮東口 5階 -
津田沼オフィス
千葉県船橋市前原西2丁目14-2
津田沼駅前安田ビル別館 2階 -
秋葉原オフィス
東京都千代田区神田佐久間河岸55
朝風染常ビル 2階
グランドネクスト販売
株式会社東京都知事(1)第105105号
-
池袋オフィス
東京都豊島区池袋2丁目13番4号
天翔池袋西口ビル 5階
お問い合わせ先


















