パークハイム横濱山手 112号室
新規登録日:2025年10月07日
最終更新日:2025年11月14日
-
- 価格
- 5,690万円11月14日 値下げ
-
- 所在地/交通
-
神奈川県横浜市中区打越30
JR根岸線「石川町」駅より徒歩12分
-
- 間取り/専有面積
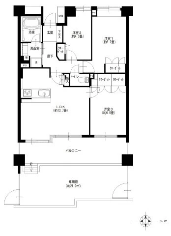
- 3LDK/68.84㎡
物件情報
- 所在地
-
神奈川県横浜市中区打越30
地図・周辺情報
- アクセス
-
JR根岸線「石川町」駅より徒歩12分
JR京浜東北線「石川町」駅より徒歩12分
横浜市営地下鉄ブルーライン「伊勢佐木長者町」駅より徒歩15分
- 間取り
- 3LDK
- 専有面積
- 68.84㎡
- バルコニー面積
- 14.59㎡
- 向き
- 東
- 築年月
- 2000年11月
- 所在階数
- 1階 地上10階/地下1階
- 建物構造
- 鉄筋コンクリート造
- 総戸数
- 127戸
- 施工会社
- 三井建設株式会社
- 管理会社
- 三井不動産レジデンシャルサービス株式会社
- 管理費
- 14,350 円/月
- 管理人状況
- 日勤
- 管理形態
- 管理会社に全部委託
- 修繕積立金
- 17,160 円/月
- 現況
- 空室
- 引渡時期
- 相談
- 取引態様
- 媒介
- 駐車場
- 有 14,000円~28,000円
- 土地権利
- 所有権
- ペットの飼育
- ペット可
- 補足事項
- ・駐輪場:有(月額200円~300円※2台目以上は月額の安い方を一律100円)・バイク置場:有(月額1,500円)
周辺地図
担当者コメント
- ▼【パークハイム横濱山手】は…・「石川」駅より徒歩12分の立地に建つ、総戸数127戸、地上10階建ての大規模マンションです。・エントランスにはオートロックを完備。宅配ボックスもあり、24時間いつでも荷物が受け取れます。・大切なペットと一緒に暮らすことができます。これから飼育をお考えの方にもおすすめです。
動画で解説
ローンシミュレーション
※金利は元利均等方式で計算しており、返済年数は5〜35年まで変更できます。
※ボーナスは年2回で計算しており、毎月の支払金額とは別で1回に増加する金額を300万円まで入力できます。
-
- 返済期間
-
年
-
- 金利
-
%
-
- ボーナス時の加算金額
-
万円
-
- 頭金
-
万円
-
- 借入金額
-
万円
-
- 毎月の返済金額
-
円/月
この物件を見た人は
こんな物件も見ています
- 見学予約
- お問い合わせ
同じ地域の物件
同じ沿線の物件
マンション名検索
- 掲載物件数
- 4610件
サービス・運営メディア
不動産の売却・購入を
ご検討中の方へ
年中無休
受付時間 9:30〜18:30
グランドネクスト株式会社国土交通大臣(1)第9883号
-
新宿オフィス
東京都新宿区新宿1丁目3-12
壱丁目参番館 3階 -
横浜オフィス
神奈川県横浜市中区桜木町2丁目2
港陽ビル 5階 -
大宮オフィス
埼玉県さいたま市大宮区宮町二丁目93-2
BIZcomfort大宮東口 5階 -
津田沼オフィス
千葉県船橋市前原西2丁目14-2
津田沼駅前安田ビル別館 2階 -
秋葉原オフィス
東京都千代田区神田佐久間河岸55
朝風染常ビル 2階
グランドネクスト販売
株式会社東京都知事(1)第105105号
-
池袋オフィス
東京都豊島区池袋2丁目13番4号
天翔池袋西口ビル 5階
お問い合わせ先


















