インペリアル横浜パークサイド 8階
新規登録日:2025年09月19日
最終更新日:2025年09月19日
-
- 価格
- 4,380万円
-
- 所在地/交通
-
神奈川県横浜市中区日ノ出町1-76-1
京浜急行線「日ノ出町」駅より徒歩1分
-
- 間取り/専有面積
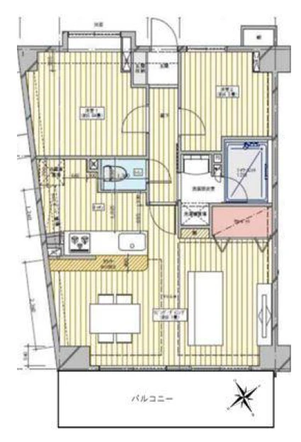
- 3LDK+WIC/58.22㎡
物件情報
- 所在地
-
神奈川県横浜市中区日ノ出町1-76-1
地図・周辺情報
- アクセス
-
京浜急行線「日ノ出町」駅より徒歩1分
横浜市営地下鉄ブルーライン「桜木町」駅より徒歩10分
JR京浜東北線「桜木町」駅より徒歩11分
- 間取り
- 3LDK+WIC
- 専有面積
- 58.22㎡
- バルコニー面積
- -
- 向き
- 南西
- 築年月
- 1996年10月
- 所在階数
- 8階 地上11階
- 建物構造
- 鉄骨鉄筋コンクリート造
- 総戸数
- 129戸
- 施工会社
- 株式会社フジタ・佐藤工業株式会社
- 管理会社
- 株式会社インペリアル・コミュニティ
- 管理費
- 12,200 円/月
- 管理人状況
- 日勤
- 管理形態
- 管理会社に全部委託
- 修繕積立金
- 12,810 円/月
- 現況
- 空室
- 引渡時期
- 即時
- 取引態様
- 媒介
- 駐車場
- 空無
- 土地権利
- 所有権
- ペットの飼育
- ペット要確認
- 補足事項
- ・駐輪場:有
周辺地図
担当者コメント
- ▼【インペリアル横浜パークサイド】は…・1996年10月築。人気の外観タイル張り物件。総戸数129戸のビッグコミュニティマンションです。・京急本線「日ノ出町」駅徒歩1分の好立地。「桜木町」駅へも徒歩10分で多方面にアクセス出来ます。・マンション周辺にスーパー、コンビニ、ドラッグストア、飲食店などが揃っております。・セキュリティ面に配慮してオートロックを完備。宅配ボックスもあり、荷物の受け取りも安心です。
動画で解説
ローンシミュレーション
※金利は元利均等方式で計算しており、返済年数は5〜35年まで変更できます。
※ボーナスは年2回で計算しており、毎月の支払金額とは別で1回に増加する金額を300万円まで入力できます。
-
- 返済期間
-
年
-
- 金利
-
%
-
- ボーナス時の加算金額
-
万円
-
- 頭金
-
万円
-
- 借入金額
-
万円
-
- 毎月の返済金額
-
円/月
この物件を見た人は
こんな物件も見ています
- 見学予約
- お問い合わせ
同じ沿線の物件
マンション名検索
- 掲載物件数
- 4610件
サービス・運営メディア
不動産の売却・購入を
ご検討中の方へ
年中無休
受付時間 9:30〜18:30
グランドネクスト株式会社国土交通大臣(1)第9883号
-
新宿オフィス
東京都新宿区新宿1丁目3-12
壱丁目参番館 3階 -
横浜オフィス
神奈川県横浜市中区桜木町2丁目2
港陽ビル 5階 -
大宮オフィス
埼玉県さいたま市大宮区宮町二丁目93-2
BIZcomfort大宮東口 5階 -
津田沼オフィス
千葉県船橋市前原西2丁目14-2
津田沼駅前安田ビル別館 2階 -
秋葉原オフィス
東京都千代田区神田佐久間河岸55
朝風染常ビル 2階
グランドネクスト販売
株式会社東京都知事(1)第105105号
-
池袋オフィス
東京都豊島区池袋2丁目13番4号
天翔池袋西口ビル 5階
お問い合わせ先


















