豊玉第二コーポラス 506号室
-
- 価格
- 3,180万円12月15日 値下げ
-
- 所在地/交通
-
東京都練馬区豊玉北6-20-9
西武池袋線「練馬」駅より徒歩7分
-
- 間取り/専有面積
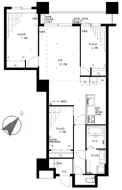
- 2DK/50.22㎡
物件情報
- 所在地
-
東京都練馬区豊玉北6-20-9
地図・周辺情報
- アクセス
-
西武池袋線「練馬」駅より徒歩7分
都営地下鉄大江戸線「練馬」駅より徒歩7分
西武池袋線「豊島園」駅より徒歩11分
- 間取り
- 2DK
- 専有面積
- 50.22㎡
- バルコニー面積
- 39.96㎡
- 向き
- 南東
- 築年月
- 1970年02月
- 所在階数
- 5階 地上8階
- 建物構造
- 鉄骨造
- 総戸数
- 112戸
- 施工会社
- ニチモプレハブ株式会社
- 管理会社
- -
- 管理費
- 3,500 円/月
- 管理人状況
- -
- 管理形態
- 自主管理
- 修繕積立金
- 9,500 円/月
- 現況
- 空室
- 引渡時期
- 相談
- 取引態様
- 媒介
- 駐車場
- 無
- 土地権利
- 所有権
- ペットの飼育
- ペット相談
- 補足事項
- ・バイク置場:有(月額500円/台、入会金1,000円/台)・駐輪場:有(月額150円/台、入会金500円/台)
周辺地図
担当者コメント
- ▼【豊玉第2コーポラス】は…・西武池袋線「練馬」駅より徒歩7分。複数路線利用可能で各方面へのアクセスも良好です。・駅周辺には商業施設や飲食店、医療機関、金融機関、教育施設などがあり住環境良好です。・徒歩圏内にスーパーやコンビニなどがあり、日々のお買物に便利な施設が整っています。・オートロックが完備されていますので、セキュリティ面でも安心してお住まいいただけます。
動画で解説
ローンシミュレーション
※金利は元利均等方式で計算しており、返済年数は5〜35年まで変更できます。
※ボーナスは年2回で計算しており、毎月の支払金額とは別で1回に増加する金額を300万円まで入力できます。
-
- 返済期間
-
年
-
- 金利
-
%
-
- ボーナス時の加算金額
-
万円
-
- 頭金
-
万円
-
- 借入金額
-
万円
-
- 毎月の返済金額
-
円/月
この物件を見た人は
こんな物件も見ています
- 見学予約
- お問い合わせ
同じ地域の物件
同じ沿線の物件
マンション名検索
- 掲載物件数
- 4260件
同じ地域の物件
-
- マンション
三田桜台第二コーポ 303号室
2,499万円
西武池袋線「桜台」駅より徒歩5分
2DK 40.05㎡ 1971年04月 3階 地上6階 東
-
- マンション
- 新価格3月2日
藤和シティコープ練馬 1101号室
4,480万円
西武池袋線「練馬」駅より徒歩3分
1LDK 41.87㎡ 1989年02月 11階 地上11階/地下1階 南
-
- マンション
グランシティユーロパレス練馬 502号室
8,780万円
西武有楽町「練馬」駅より徒歩7分
2LDK+WIC 63.35㎡ 2006年02月 5階 地上7階 南西
-
- マンション
江古田サニーハイツ 410号室
6,299万円
都営地下鉄大江戸線「新江古田」駅より徒歩1分
3SLDK 75.35㎡ 1974年06月 4階 地上7階 南西
-
- マンション
パーク・ハイム豊玉北 101号室
5,490万円
西武池袋線「練馬」駅より徒歩6分
3LDK+WIC 74.00㎡ 1981年11月 1階 地上4階 南
サービス・運営メディア
不動産の売却・購入を
ご検討中の方へ
年中無休
受付時間 9:30〜18:30
グランドネクスト株式会社国土交通大臣(1)第9883号
-
新宿オフィス
東京都新宿区新宿1丁目3-12
壱丁目参番館 3階 -
横浜オフィス
神奈川県横浜市中区桜木町2丁目2
港陽ビル 5階 -
大宮オフィス
埼玉県さいたま市大宮区宮町二丁目93-2
BIZcomfort大宮東口 5階 -
津田沼オフィス
千葉県船橋市前原西2丁目14-2
津田沼駅前安田ビル別館 2階 -
秋葉原オフィス
東京都千代田区神田佐久間河岸55
朝風染常ビル 2階
グランドネクスト販売
株式会社東京都知事(1)第105105号
-
池袋オフィス
東京都豊島区池袋2丁目13番4号
天翔池袋西口ビル 5階
お問い合わせ先


















