根岸台第一マンションズ 5階
新規登録日:2025年05月13日
最終更新日:2025年11月21日
-
- 価格
- 2,580万円11月21日 値下げ
-
- 所在地/交通
-
神奈川県横浜市中区滝之上135
JR京浜東北線「根岸」駅より徒歩16分
-
- 間取り/専有面積
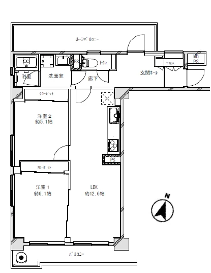
- 1LDK/75.83㎡
物件情報
- 所在地
-
神奈川県横浜市中区滝之上135
地図・周辺情報
- アクセス
-
JR京浜東北線「根岸」駅より徒歩16分
JR根岸線「根岸」駅より徒歩16分
- 間取り
- 1LDK
- 専有面積
- 75.83㎡
- バルコニー面積
- 11.83㎡
- 向き
- 南東
- 築年月
- 1971年07月
- 所在階数
- 5階 地上9階
- 建物構造
- 鉄筋コンクリート造
- 総戸数
- 58戸
- 施工会社
- 竹中工務店株式会社
- 管理会社
- 日本ハウズイング株式会社
- 管理費
- 15,100 円/月
- 管理人状況
- 日勤
- 管理形態
- 管理会社に全部委託
- 修繕積立金
- 15,300 円/月
- 現況
- 空室
- 引渡時期
- 相談
- 取引態様
- 媒介
- 駐車場
- 無
- 土地権利
- 所有権
- ペットの飼育
- ペット可 ・ ペット相談
- 補足事項
- ・自転車置場:有・バイク置場:有・組合費:月額1,500円
周辺地図
担当者コメント
- ▼【根岸台第一マンションズ】は…・JR根岸線「根岸」駅より徒歩16分の立地に建つ、総戸数58戸の地上9階建てマンションです。・周辺にはコンビニエンスストアやスーパーもあり、毎日のお買い物にも便利です。・大切なペットと一緒に暮らすことができます。これから飼育をお考えの方にもおすすめです。
動画で解説
ローンシミュレーション
※金利は元利均等方式で計算しており、返済年数は5〜35年まで変更できます。
※ボーナスは年2回で計算しており、毎月の支払金額とは別で1回に増加する金額を300万円まで入力できます。
-
- 返済期間
-
年
-
- 金利
-
%
-
- ボーナス時の加算金額
-
万円
-
- 頭金
-
万円
-
- 借入金額
-
万円
-
- 毎月の返済金額
-
円/月
この物件を見た人は
こんな物件も見ています
- 見学予約
- お問い合わせ
同じ沿線の物件
マンション名検索
- 掲載物件数
- 4610件
サービス・運営メディア
不動産の売却・購入を
ご検討中の方へ
年中無休
受付時間 9:30〜18:30
グランドネクスト株式会社国土交通大臣(1)第9883号
-
新宿オフィス
東京都新宿区新宿1丁目3-12
壱丁目参番館 3階 -
横浜オフィス
神奈川県横浜市中区桜木町2丁目2
港陽ビル 5階 -
大宮オフィス
埼玉県さいたま市大宮区宮町二丁目93-2
BIZcomfort大宮東口 5階 -
津田沼オフィス
千葉県船橋市前原西2丁目14-2
津田沼駅前安田ビル別館 2階 -
秋葉原オフィス
東京都千代田区神田佐久間河岸55
朝風染常ビル 2階
グランドネクスト販売
株式会社東京都知事(1)第105105号
-
池袋オフィス
東京都豊島区池袋2丁目13番4号
天翔池袋西口ビル 5階
お問い合わせ先


















