ライオンズマンション西高島平溝下公園 壱番館205号室
新規登録日:2025年09月30日
最終更新日:2026年02月09日
-
- 価格
- 3,790万円2月9日 値下げ
-
- 所在地/交通
-
東京都板橋区三園1-41-4
都営地下鉄三田線「西高島平」駅より徒歩6分
-
- 間取り/専有面積
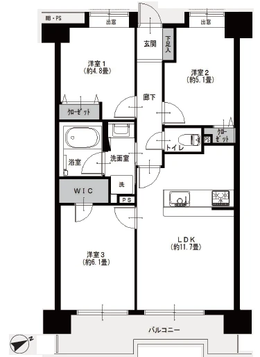
- 3LDK+WIC/60.76㎡
物件情報
- 所在地
-
東京都板橋区三園1-41-4
地図・周辺情報
- アクセス
-
都営地下鉄三田線「西高島平」駅より徒歩6分
- 間取り
- 3LDK+WIC
- 専有面積
- 60.76㎡
- バルコニー面積
- 8.12㎡
- 向き
- 南東
- 築年月
- 1998年07月
- 所在階数
- 2階 地上5階
- 建物構造
- 鉄筋コンクリート造
- 総戸数
- 33戸
- 施工会社
- 古久根建設株式会社
- 管理会社
- 株式会社大京アステージ
- 管理費
- 15,800 円/月
- 管理人状況
- 日勤
- 管理形態
- 管理会社に全部委託
- 修繕積立金
- 23,000 円/月
- 現況
- 空室
- 引渡時期
- 相談
- 取引態様
- 媒介
- 駐車場
- 有 16,000円~22,000円
- 土地権利
- 所有権
- ペットの飼育
- ペット可
- 補足事項
- ・駐輪場:敷地内有(無料※シールあり)
・バイク置場:敷地内無
・2023年7月大規模修繕工事実施済
周辺地図
動画で解説
ローンシミュレーション
※金利は元利均等方式で計算しており、返済年数は5〜35年まで変更できます。
※ボーナスは年2回で計算しており、毎月の支払金額とは別で1回に増加する金額を300万円まで入力できます。
-
- 返済期間
-
年
-
- 金利
-
%
-
- ボーナス時の加算金額
-
万円
-
- 頭金
-
万円
-
- 借入金額
-
万円
-
- 毎月の返済金額
-
円/月
この物件を見た人は
こんな物件も見ています
- 見学予約
- お問い合わせ
同じ地域の物件
同じ沿線の物件
マンション名検索
- 掲載物件数
- 4260件
サービス・運営メディア
不動産の売却・購入を
ご検討中の方へ
年中無休
受付時間 9:30〜18:30
グランドネクスト株式会社国土交通大臣(1)第9883号
-
新宿オフィス
東京都新宿区新宿1丁目3-12
壱丁目参番館 3階 -
横浜オフィス
神奈川県横浜市中区桜木町2丁目2
港陽ビル 5階 -
大宮オフィス
埼玉県さいたま市大宮区宮町二丁目93-2
BIZcomfort大宮東口 5階 -
津田沼オフィス
千葉県船橋市前原西2丁目14-2
津田沼駅前安田ビル別館 2階 -
秋葉原オフィス
東京都千代田区神田佐久間河岸55
朝風染常ビル 2階
グランドネクスト販売
株式会社東京都知事(1)第105105号
-
池袋オフィス
東京都豊島区池袋2丁目13番4号
天翔池袋西口ビル 5階
お問い合わせ先



















・都営三田線「西高島平」駅より徒歩6分。各方面にアクセス至便で通勤通学にも大変便利です。
・大切なペットとお暮しいただけます。これからお考えの方にもおすすめの物件となっております。
・エントランスにはオートロック付き。セキュリティ面でも安心してお住まいいただけます。
・嬉しい宅配ボックスを完備。不在時や急な外出時等にも安心してお荷物をお受け取りいただけます。
・周辺にはスーパーやコンビニエンスストアなどもあり毎日のお買い物に大変便利な住環境です。
【同マンション 弐番館206号室 3LDK】も販売中です。詳しくはこちらをクリック!