ダイアパレスタピオ向ヶ丘遊園 201号室
-
- 価格
- 3,580万円4月4日 値下げ
-
- 所在地/交通
-
神奈川県川崎市多摩区登戸152‐1
JR南武線「中野島」駅より徒歩14分
-
- 間取り/専有面積
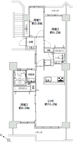
- 4LDK+WIC/75.06㎡
物件情報
- 所在地
-
神奈川県川崎市多摩区登戸152‐1
地図・周辺情報
- アクセス
-
JR南武線「中野島」駅より徒歩14分
小田急小田原線「向ヶ丘遊園」駅より徒歩17分
小田急小田原線「登戸」駅より徒歩20分
- 間取り
- 4LDK+WIC
- 専有面積
- 75.06㎡
- バルコニー面積
- 17.71㎡
- 向き
- 西
- 築年月
- 1999年03月
- 所在階数
- 2階 地上5階
- 建物構造
- 鉄筋コンクリート造
- 総戸数
- 38戸
- 施工会社
- -
- 管理会社
- 株式会社東急コミュニティー
- 管理費
- 12,700 円/月
- 管理人状況
- 日勤
- 管理形態
- 管理会社に全部委託
- 修繕積立金
- 25,150 円/月
- 現況
- 空室
- 引渡時期
- 相談
- 取引態様
- 媒介
- 駐車場
- 空無 13,000円
- 土地権利
- 所有権
- ペットの飼育
- 補足事項
- ・駐輪場:空有(無償)
・長期修繕計画書有
・2013年12月大規模修繕工事実施済
・専用ポーチ面積:6.17㎡
・サービスバルコニー面積:2.85㎡
・令和7年度固定資産税、都市計画税:123,707円
※固定資産課税台帳記載事項証明書に基づく
周辺地図
動画で解説
ローンシミュレーション
※金利は元利均等方式で計算しており、返済年数は5〜35年まで変更できます。
※ボーナスは年2回で計算しており、毎月の支払金額とは別で1回に増加する金額を300万円まで入力できます。
-
- 返済期間
-
年
-
- 金利
-
%
-
- ボーナス時の加算金額
-
万円
-
- 頭金
-
万円
-
- 借入金額
-
万円
-
- 毎月の返済金額
-
円/月
この物件を見た人は
こんな物件も見ています
- 見学予約
- お問い合わせ
同じ地域の物件
同じ沿線の物件
マンション名検索
- 掲載物件数
- 3968件
同じ地域の物件
-
- マンション
- 新価格3月7日
アトラスタワー向ヶ丘遊園 2104号室
1億499万円
小田急小田原線「向ヶ丘遊園」駅より徒歩2分
3LDK 85.36㎡ 2008年08月 21階 地上23階/地下2階 南西
-
- マンション
小田急コアロード向ヶ丘遊園 106号室
7,599万円
小田急小田原線「向ヶ丘遊園」駅より徒歩6分
3LDK+WIC 80.27㎡ 1999年03月 1階 地上6階 南西
-
- マンション
- 新価格2月15日
登戸ハイデンス 508号室
5,798万円
小田急小田原線「登戸」駅より徒歩3分
3LDK+パントリー 92.25㎡ 1976年04月 5階 地上14階 南東
-
- マンション
ライオンズマンション登戸第2 301号室
5,980万円
小田急小田原線「登戸」駅より徒歩4分
4LDK+TR 87.74㎡ 1980年06月 3階 地上6階
サービス・運営メディア
不動産の売却・購入を
ご検討中の方へ
年中無休
受付時間 9:30〜18:30
グランドネクスト株式会社国土交通大臣(1)第9883号
-
新宿オフィス
東京都新宿区新宿1丁目3-12
壱丁目参番館 3階 -
横浜オフィス
神奈川県横浜市中区桜木町2丁目2
港陽ビル 5階 -
大宮オフィス
埼玉県さいたま市大宮区宮町二丁目93-2
BIZcomfort大宮東口 5階 -
津田沼オフィス
千葉県船橋市前原西2丁目14-2
津田沼駅前安田ビル別館 2階 -
秋葉原オフィス
東京都千代田区神田佐久間河岸55
朝風染常ビル 2階
グランドネクスト販売
株式会社東京都知事(1)第105105号
-
池袋オフィス
東京都豊島区池袋2丁目13番4号
天翔池袋西口ビル 5階
お問い合わせ先



















・南武線「中野島」駅より徒歩14分。複数路線利用可能で各方面にアクセス至便となっております。
・エントランスにはオートロック付き。セキュリティ面でも安心してお住まいいただけます。
・嬉しい宅配ボックスを完備。不在時や急な外出時等にも安心してお荷物をお受け取りいただけます。
・周辺にはスーパーやコンビニエンスストアなどもあり毎日のお買い物に大変便利な住環境です。
・小学校や中学校などの教育施設も徒歩圏内。子育て世代の方にもおすすめ住環境となっております。
・お部屋は2階部分の4LDK。WIC付で収納豊富。すっきり快適なお部屋でお過ごしいただけます。
・専用ポーチもございます。全居室窓もあり通風採光良好な3方向角部屋となっております。
<主なリノベーション内容>(令和8年2月上旬完成予定)
システムキッチン/ユニットバス/洗面台/トイレ/クロス張替/床張替/建具/給湯器/その他
<販売価格について>
2025年12月18日での掲載開始した時点の価格は4,580万円です。